ID CP2214703

Spațiu versatil în centru – rezidențial/comercial

Această proprietate nu mai este activă,
te invităm să vizualizezi proprietăți similare

ID CP2214703

450 € (negociabil)

Spațiu comercial de închiriat
Central, Arad
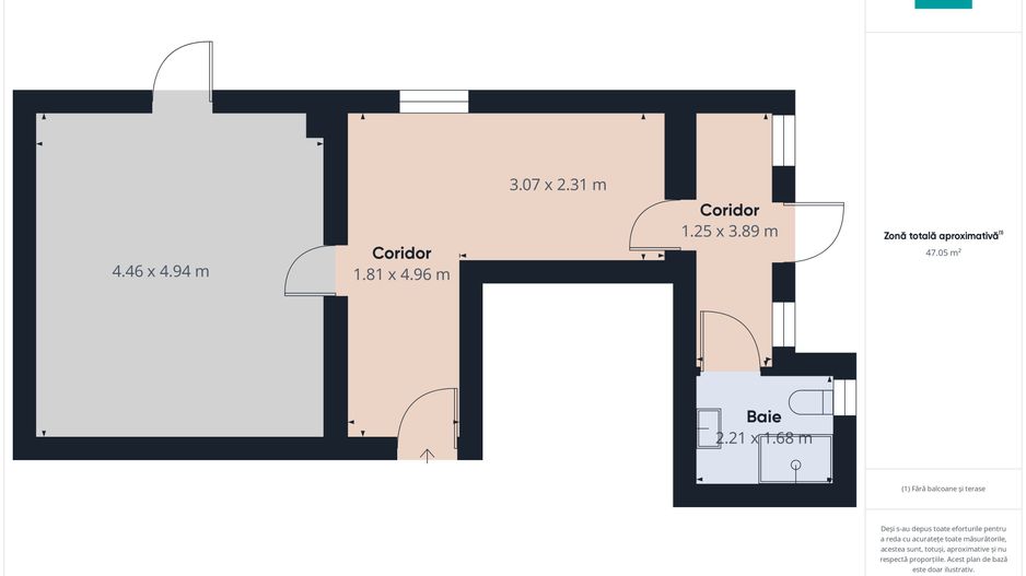
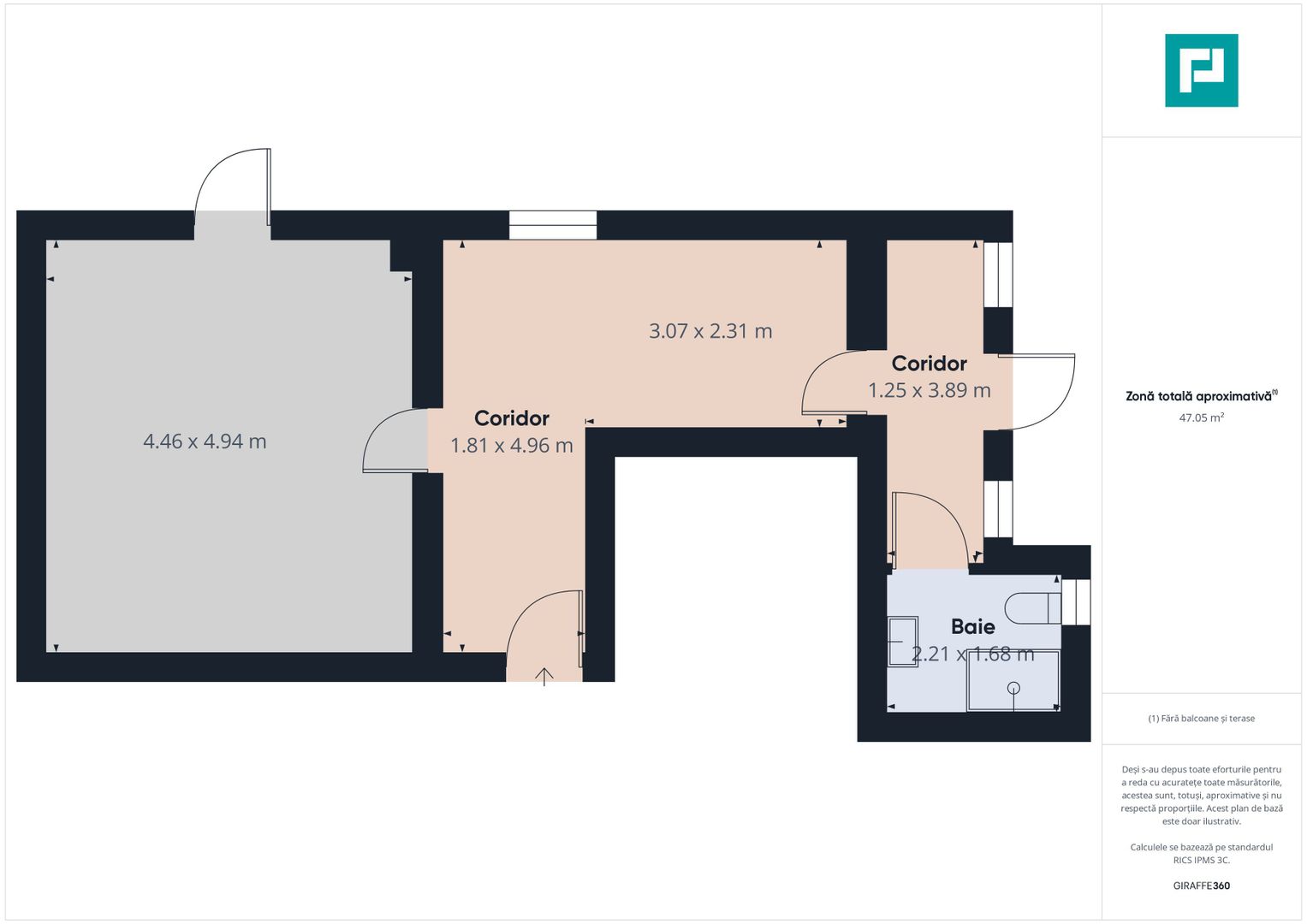
47 mp
2013

PropertyLab vă propune spre închiriere un spațiu versatil, situat pe Strada Dimitrie Bolintineanu, în zona centrală a Aradului.

Proprietatea se află într-o locație excelentă, cu trafic pietonal ridicat și acces facil, ceea ce îi oferă un potențial ridicat atât pentru activități comerciale (birou, magazin, cabinet, salon), cât și pentru locuire rezidențială

Suprafață utilă: 47 m²

Camere: 2

Etaj: Parter

Disponibilitate: Imediată

Avantaje:

Poziție centrală, vizibilă și ușor accesibilă.

Compartimentare practică: 2 camere + grup sanitar.

Utilități disponibile: apă, canalizare, curent electric.

Flexibilitate în amenajare, în funcție de destinația dorită (business sau locuință).

Programează acum o vizionare și descoperă potențialul acestui spațiu!

Contact:

Alexandra Valea - consultant imobiliar PropertyLab

email: alexandra.valea@propertylab.ro

telefon: 0746756071

Diana Ponoran - consultant imobiliar PropertyLab

email: diana.ponoran@propertylab.ro

telefon: 0758409801

Citește mai mult

  • Tip imobil
    Centru comercial
  • Etaj
    Parter
  • Număr camere
    2
  • Suprafață construită
    60 mp
  • Suprafață utilă
    47 mp
  • Vitrină (m)
    2.0 m
  • Disponibilitate
    Imediat
  • Compartimentare spațiu
    Compartimentat
  • An construcție
    2013
  • Construcție nouă
    Da

Facilități

Apă
Canalizare
Curent
Necesare:

Site-ul nu poate funcționa corect fără aceste cookie-uri. Vezi cookie-urile

Statistică:

Strângem statistici anonime despre voi, vizitatorii unici, pentru a vă îmbunătăți experiența dumneavoastră. Vezi cookie-urile

Marketing:

Pentru a ne promova mai eficient serviciile noastre, folosim cookies pentru a vă identifica și a vă oferi proprietăți și servicii personalizate. Vezi cookie-urile

Acest site folosește cookies, află detalii. Alege ce tipuri de cookies dorești să permitem: