ID CP1702160

Spațiu industrial cu platformă betonată și teren

ID CP1702160

480,000 € + 21% TVA

Spațiu industrial de vânzare
Aradul Nou, Arad
445 mp
1990

Agentia imobiliară Property Lab vă propune spre vânzare o hală ideală pentru desfășurarea unei activități de producție sau comercială.

Caracteristicile imobilului:

Suprafață teren: 4.719 mp

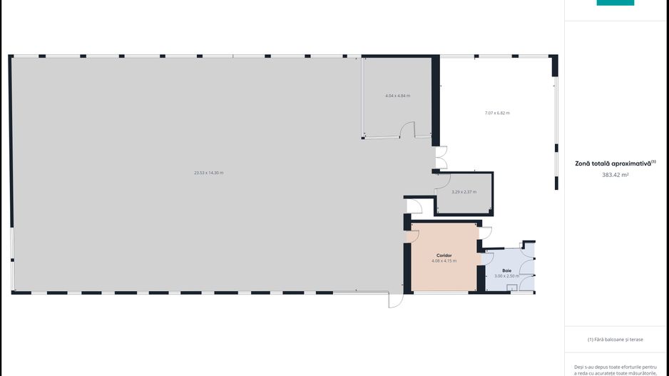
Suprafață utilă hală: 445 mp

Front stradal: 58 ml

Înălțime hală: 3.5 m

Sistem de alarmă activ

Curent: Trifazic

Apă, canalizare, gaz.

Pe teren se găsesc două construcții:

- Hală pentru confecții textile cu toate proprietățile de mai sus

- Corp administrativ compus din: birouri, sală de mese, dormitor, toaletă.

Pentru mai multe informații și pentru a programa o vizionare, puteți contacta consultantul imobiliar Raluca Marinescu de la Property Lab folosind următoarele date de contact:

Telefon: 0755 083 764

Email: raluca.marinescu@propertylab.ro

CP1702160

Citește mai mult

  • Tip imobil
    Hală
  • Etaj
    Parter
  • Clasă birouri
    C
  • Număr camere
    5
  • Număr băi
    5
  • Număr vestiare
    2
  • Număr bucătării
    2
  • An construcție
    1990
  • Număr locuri parcare
    20
  • Suprafață construită
    480 mp
  • Suprafață utilă
    445 mp
  • Suprafață totală birouri
    100 mp
  • Suprafață producție
    403 mp
  • Suprafață teren
    5,024 mp
  • Înălțime interioară
    3.5
  • Disponibilitate
    Imediat
  • Compartimentare spațiu
    Open space

Facilități

Acces auto
Acces TIR
Apă
Canalizare
Curent
Curent trifazic (380V)
Gaz
Iluminat stradal
La șosea
Mijloace de transport în comun
Parcare deschisă
Străzi asfaltate
Teren împrejmuit
Uși de acces
Vestiar
Raluca Marinescu - PROPERTY LAB
Raluca Marinescu
Real Estate Consultant Arad

+40 755 083 764


Solicită chiar acum o vizionare
Telefon
Email
Sună acum Solicită vizionare
Necesare:

Site-ul nu poate funcționa corect fără aceste cookie-uri. Vezi cookie-urile

Statistică:

Strângem statistici anonime despre voi, vizitatorii unici, pentru a vă îmbunătăți experiența dumneavoastră. Vezi cookie-urile

Marketing:

Pentru a ne promova mai eficient serviciile noastre, folosim cookies pentru a vă identifica și a vă oferi proprietăți și servicii personalizate. Vezi cookie-urile

Acest site folosește cookies, află detalii. Alege ce tipuri de cookies dorești să permitem: