ID CP2853223

Hală de producție, cu birouri și teren, în Sebiș

ID CP2853223

2,381,247 € (negociabil)

Spațiu industrial de vânzare
Nord-Est, Sebis
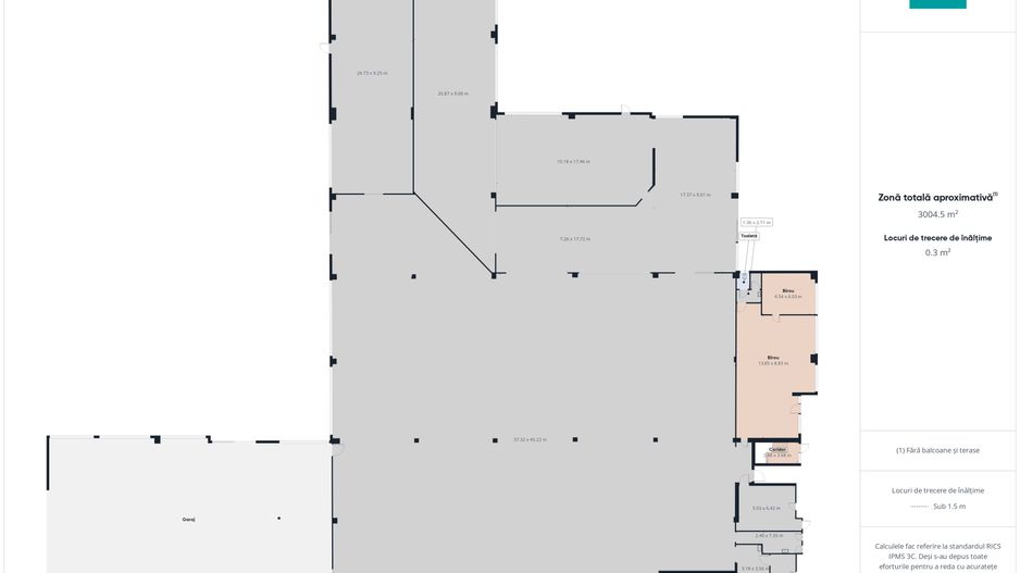
3,200 mp
1998

PROPERTY LAB vă prezintă spre vânzare:

Hală industrială de producție – capacitate mare | Construcție solidă, ideală pentru activități industriale

Vă propunem spre vânzare o hală industrială de producție de mari dimensiuni, situată în orașul Sebiș, județul Arad, construită în anul 1998, concepută pentru activități industriale intensive, cu infrastructură completă și acces facil pentru transport greu.

Construcție și structură

Construcție realizată pe fundație din beton

Pereți din beton prefabricat, fabricați și montați în 1998 de firma INCONTRO PREFABBRICATI – Timișoara

Structură rezistentă la cutremur

Acoperiș realizat din structură de stâlpi de susținere tip Y, cu arcade din aluminiu

Podea industrială betonată

Curte betonată integral, de jur împrejur

Poartă din fier zincat, pe role metalice, cu acționare prin telecomandă

Acces TIR atât lateral, cât și în spatele fabricii

Suprafețe

Suprafață teren: 22.705 mp

Suprafață construită hală: 4.600 mp

Siguranță și utilități

Hidranți exteriori și interiori la fiecare intrare

Post Trafo propriu – capacitate 250 kW

Rezervor gaz metan – capacitate 5.000 l

Apă curentă

Canalizare

Drum asfaltat până în fața curții

Compartimentare și amenajări

Hala este compartimentată în 3 hale de producție

În partea frontală, la parter:

5 birouri open-space

1 birou închis

Grup sanitar dedicat birourilor

Zonă destinată personalului:

Vestiare separate bărbați / femei

Băi cu dușuri

Spațiu pentru servirea mesei

Etaj 1 (deasupra birourilor):

2 apartamente generoase pentru locuit

Hol spațios

Posibilitate sală de ședințe / spații administrative

Sisteme de încălzire

Încălzire cu cazan pe lemne

Sistem de încălzire pe gaz metan

Destinație actuală

Hala este funcțională și amenajată ca fabrică de producție încălțăminte, dotată cu aparatură de injectare talpă.

Aparatura se vinde separat și nu este inclusă în prețul halei, dar poate fi achiziționată opțional.

Recomandată pentru:

Producție industrială

Fabrici, logistică, depozitare

Investiție cu randament ridicat

Activități care necesită infrastructură solidă și acces TIR

Sper că această propunere îndeplinește așteptările dumneavoastră.

Pentru mai multe informații sau pentru a programa o vizionare, nu ezitați să mă contactați!

Claudiu Coșeri - Consultant Imobiliar Propertylab

Telefon: 0741 406 291

CP2853223

Citește mai mult

  • Tip imobil
    Hală
  • Număr camere
    10
  • Număr băi
    10
  • Număr vestiare
    2
  • Număr bucătării
    3
  • An construcție
    1998
  • Suprafață construită
    4,600 mp
  • Suprafață utilă
    3,200 mp
  • Suprafață producție
    4,000 mp
  • Suprafață teren
    22,705 mp
  • Disponibilitate
    1 luna
  • Compartimentare spațiu
    Parțial compartimentat

Facilități

Acces auto
Acces TIR
Apă
Canalizare
Curent
Curent trifazic (380V)
Iluminat stradal
La șosea
Mijloace de transport în comun
Oportunitate de investiții
Parcare deschisă
Posibilitate de compartimentare
Străzi asfaltate
Teren împrejmuit
Uși de acces
Utilități în zonă
Vestiar
Claudiu Coșeri - PROPERTY LAB
Claudiu Coșeri
Real Estate Consultant Arad

+40 741 406 291


Solicită chiar acum o vizionare
Telefon
Email
Sună acum Solicită vizionare
Necesare:

Site-ul nu poate funcționa corect fără aceste cookie-uri. Vezi cookie-urile

Statistică:

Strângem statistici anonime despre voi, vizitatorii unici, pentru a vă îmbunătăți experiența dumneavoastră. Vezi cookie-urile

Marketing:

Pentru a ne promova mai eficient serviciile noastre, folosim cookies pentru a vă identifica și a vă oferi proprietăți și servicii personalizate. Vezi cookie-urile

Acest site folosește cookies, află detalii. Alege ce tipuri de cookies dorești să permitem: