ID CP2705321

Imobil Mixt– Ideal Pentru Birouri, Showroom

ID CP2705321

1,100,000 € (negociabil) + 21% TVA

Spațiu industrial de vânzare
Freidorf, Timisoara
6,672 mp
2001

O oportunitate excelentă de investiție! Vă propunem spre vânzare un imobil mixt compus din 3 clădiri, situat într-o zonă urbană dezvoltata, înconjurată de locuințe, ideal pentru activități nepoluante și fără impact asupra vecinătății.

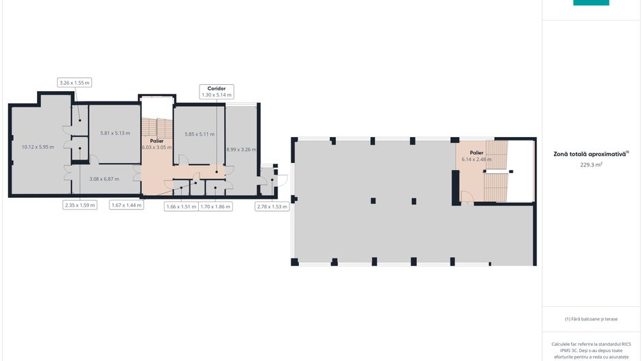
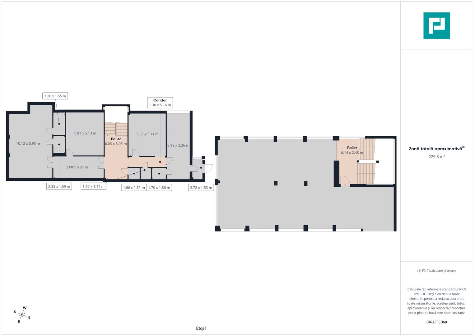
CARACTERISTICI TEHNICE:

- C1 – Spațiu comercial, protocol și birouri

• Regim: P+1E+M

• Suprafață construită: 247 mp

• Suprafață desfășurată: 758 mp

- C2 – Spații multifuncționale (birouri / showroom / depozitare)

Regim: P+2E+M

Suprafață construită: 1.327 mp

Suprafață desfășurată: 5.012 mp

- C3 – Clădire birou

totala construita la sol este de 1646 mp si Suprafata totala desfasurata 5842 C3 – Clădire birou

Suprafață construită: 72 mp

TOTAL:

- Suprafață totală construită la sol: 1.646 mp

- Suprafață totală desfășurată: 5.842 mp

UTILITĂȚI & FACILITĂȚI:

- Gaz

- Curent + curent trifazic

- Apă

- Canalizare

- Acces auto facil

- Ieșire pe două laturi ale proprietății (dublu acces auto)

SE POTRIVEȘTE PERFECT PENTRU:

Sediu central firmă

Showroom & spații administrative

Pentru medical / educațional / servicii

Activități de prestări servicii sau logistică

Investitori care caută o proprietate versatilă

Pentru detalii suplimentare sau programarea unei vizionări, nu ezitați să mă contactați!

Daniela Ianc – PropertyLab

Tel 0722 375 289

daniela.ianc@propertylab.ro

CP2705321

Citește mai mult

  • Tip imobil
    Depozit
  • Etaj
    1, 2, 3, Mansarda
  • Număr camere
    10
  • Număr băi
    6
  • An construcție
    2001
  • Construcție nouă
    Da
  • Vitrină (m)
    20.0 m
  • Număr locuri parcare
    10
  • Suprafață construită
    5,842 mp
  • Suprafață utilă
    6,672 mp
  • Suprafață totală birouri
    5,842 mp
  • Suprafață teren
    9,874 mp
  • Disponibilitate
    Imediat

Facilități

Acces auto
Acces TIR
Apă
Canalizare
Curent
Curent trifazic (380V)
Garaj
Gaz
Iluminat stradal
La șosea
Mijloace de transport în comun
Oportunitate de investiții
Parcare deschisă
Posibilitate de compartimentare
Străzi asfaltate
Teren împrejmuit
Uși de acces
Vestiar
Daniela Ianc - PROPERTY LAB
Daniela Ianc
Real Estate Consultant Timișoara

+40 722 375 289


Solicită chiar acum o vizionare
Telefon
Email
Sună acum Solicită vizionare
Necesare:

Site-ul nu poate funcționa corect fără aceste cookie-uri. Vezi cookie-urile

Statistică:

Strângem statistici anonime despre voi, vizitatorii unici, pentru a vă îmbunătăți experiența dumneavoastră. Vezi cookie-urile

Marketing:

Pentru a ne promova mai eficient serviciile noastre, folosim cookies pentru a vă identifica și a vă oferi proprietăți și servicii personalizate. Vezi cookie-urile

Acest site folosește cookies, află detalii. Alege ce tipuri de cookies dorești să permitem: