ID CP2113831

Spatiu birouri 187 mp langa zona Industriala Vest

Această proprietate nu mai este activă,
te invităm să vizualizezi proprietăți similare

ID CP2113831

2,244 €

Spațiu de birouri de închiriat
Exterior Vest, Arad
187 mp
2018

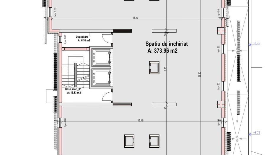
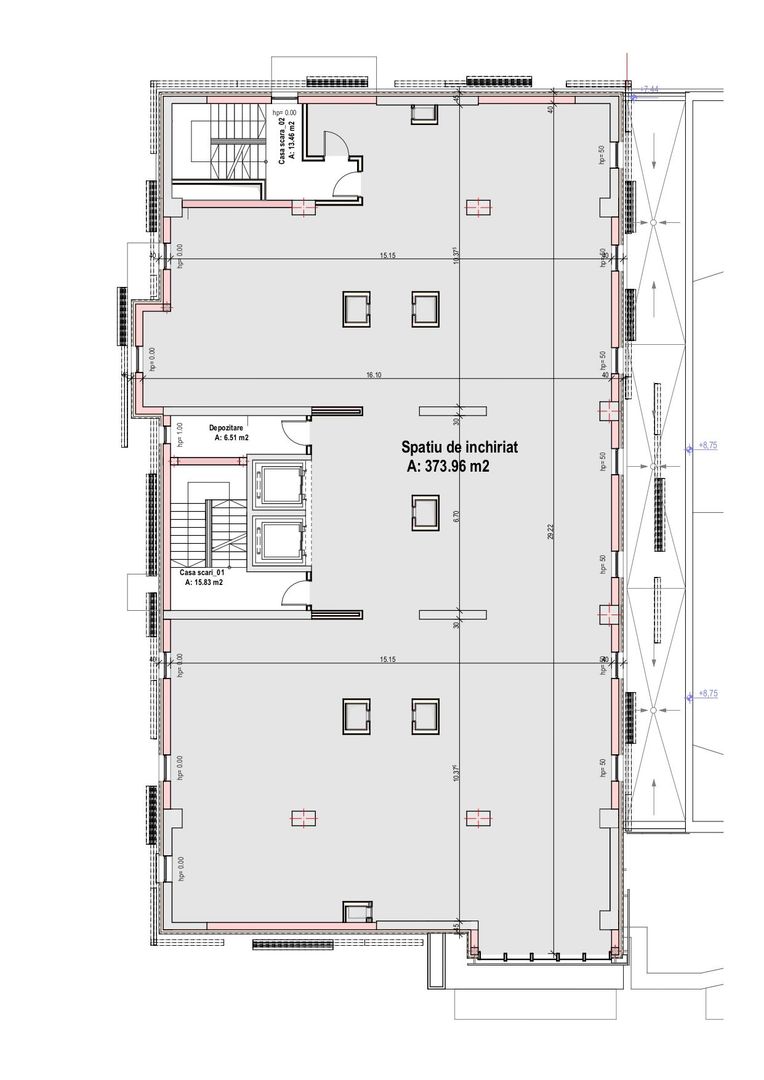
Spațiu birouri 187 mp în zona Industriala Vest

Iți dorești un nou spațiu unde să iți desfășori activitatea?

Property Lab vă propune spre închiriere un spațiu open space situat la etajul 2 într-o clădire modernă, construită în anul 2018 la cele mai înalte standarde.

Această suprafață generoasă poate fi compartimentată și amenajată conform cerințelor viitorului chirias, toate aceste renovari vor fi implementate de catre proprietar.

În acest imobil vă puteți bucura de mai multe facilități, cum ar fi:

- recepție;

- restaurant;

- terasă;

- sală de conferințe;

- sală de evenimente;

- camere de supraveghere;

- alarmă de fum și securitate;

- aer condiționat;

- lifturi;

- parcare privată.

Pentru mai multe detalii si vizionari, nu ezita sa ma contactezi!

Almira Boboc - Consultant Imobiliar PropertyLab

Telefon: 0745 06 93 93

Email: almira.boboc@propertylab.ro

Cod Proprietate 2113784

Citește mai mult

  • Tip imobil
    Clădire birouri
  • Etaj
    2
  • Număr camere
    1
  • Număr băi
    2
  • Suprafață construită
    187 mp
  • Suprafață utilă
    187 mp
  • Disponibilitate
    Imediat
  • Suprafață totală birouri
    150 mp
  • Compartimentare spațiu
    Open space
  • Parcări suprafață
    10
  • An construcție
    2018
  • Construcție nouă
    Da
  • Număr etaje clădire
    10

Facilități

Acces pentru persoane cu dizabilități
Afișare logo pe clădire
Cafenea la parter
Control individual AC pentru fiecare zonă de birou
Curățenie parcare
Curățenie spații comune
Echipamente moderne / silențioase
Grupuri sanitare amenajate și utilate
Incărcător auto electrice
Îngrijirea spațiilor verzi
Internet
Mochetă
Parcare biciclete
Parcare deschisă
Parchet
Recepție
Restaurant în clădire
Sistem de alarmă
Sistem de ventilație
Sistem electric inteligent
Telefon
Necesare:

Site-ul nu poate funcționa corect fără aceste cookie-uri. Vezi cookie-urile

Statistică:

Strângem statistici anonime despre voi, vizitatorii unici, pentru a vă îmbunătăți experiența dumneavoastră. Vezi cookie-urile

Marketing:

Pentru a ne promova mai eficient serviciile noastre, folosim cookies pentru a vă identifica și a vă oferi proprietăți și servicii personalizate. Vezi cookie-urile

Acest site folosește cookies, află detalii. Alege ce tipuri de cookies dorești să permitem: