ID CP2855894

Birou premium all inclusive – Aviației

ID CP2855894

2,916 €

Spațiu de birouri de închiriat
Aviatorilor, Bucuresti
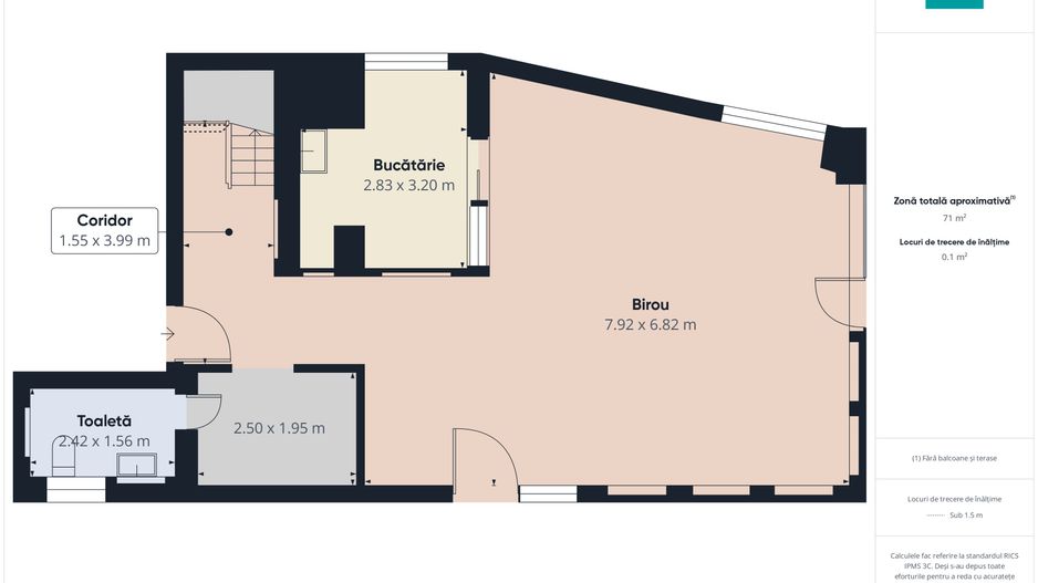
71 mp
2020

Birou premium all inclusive – Aviației

Cauți un spațiu de lucru elegant, complet echipat și fără costuri ascunse?

La Hublou Coworking, transformi rutina de birou într-o experiență inspirantă, cu tot ce ai nevoie pentru confort, productivitate și energie bună – într-o singură locație.

Plătești o singură sumă lunară și beneficiezi de:

birou privat, exclusiv pentru echipa ta

lumină naturală, ventilație și design aerisit

mobilier ergonomic și funcțional

acces 24/7, internet hi-speed, curățenie zilnică

apă, cafea și ceai incluse zilnic

chicinetă complet utilată și zonă de relaxare

20 de ore/lună în sala de meeting

imprimantă, scanner și lockere

găzduire sediu social

Și, pentru pauzele care inspiră, te bucuri de terase verzi și spații exterioare amenajate – o oază de relaxare chiar în mijlocul orașului.

Hublou este un spațiu verde, sustenabil, alimentat 100% cu energie regenerabilă, creat pentru echipe moderne și antreprenori care apreciază calitatea și echilibrul.

📍 Locație: Strada Emanoil Porumbaru – între Parcul Herăstrău, Kiseleff și Piața Charles de Gaulle, la doar câteva minute de metroul Aviatorilor.

Ideal pentru o echipă de până la 10 persoane.

Un birou privat, într-un mediu inspirațional – ca acasă, dar cu infrastructura unui spațiu premium.

Pentru detalii și vizionare, contactează-mă acum!

Consultant imobiliar PropertyLab

Diana Ponoran

📞 0758 409 801

CP2855894

Citește mai mult

  • Etaj
    4
  • Clasă birouri
    A
  • Număr camere
    1
  • Număr băi
    1
  • Număr terase
    1
  • Suprafață utilă
    71 mp
  • Disponibilitate
    Imediat
  • Suprafață totală birouri
    71 mp
  • Compartimentare spațiu
    Parțial compartimentat
  • An construcție
    2020
  • Construcție nouă
    Da
  • Număr etaje clădire
    6

Facilități

Aport de aer proaspăt
Control acces securizat pe bază de cartele
Detectoare de fum/incendiu
Internet
Diana Ponoran - PROPERTY LAB
Diana Ponoran
Deputy Branch Manager București

0758409801


Solicită chiar acum o vizionare
Telefon
Email
Sună acum Solicită vizionare
Necesare:

Site-ul nu poate funcționa corect fără aceste cookie-uri. Vezi cookie-urile

Statistică:

Strângem statistici anonime despre voi, vizitatorii unici, pentru a vă îmbunătăți experiența dumneavoastră. Vezi cookie-urile

Marketing:

Pentru a ne promova mai eficient serviciile noastre, folosim cookies pentru a vă identifica și a vă oferi proprietăți și servicii personalizate. Vezi cookie-urile

Acest site folosește cookies, află detalii. Alege ce tipuri de cookies dorești să permitem: