ID CP2115342

Spațiu comercial modern cu parcare proprie

ID CP2115342

5,100 € (negociabil) + 21% TVA

Spațiu comercial de închiriat
Micalaca, Arad
340 mp
2015

Spațiu comercial modern cu parcare proprie

Iți dorești o nouă locație în care să iți desfășori activitatea?

PropertyLab iți propune o clădire individuală, modernă și avangardistă, localizată în zona Micălaca, Arad.

Suprafața utilă totală este de 340 mp, dispune de toate utilitățile și poate fi convertită în clinică medicală, centru comercial, after school, sediu de firmă și altele.

Mijloacele de transport în comun sunt în apropiere, la fel și supermarketuri, farmacii, iar accesul se face ușor din toate zonele orașului și din afara lui.

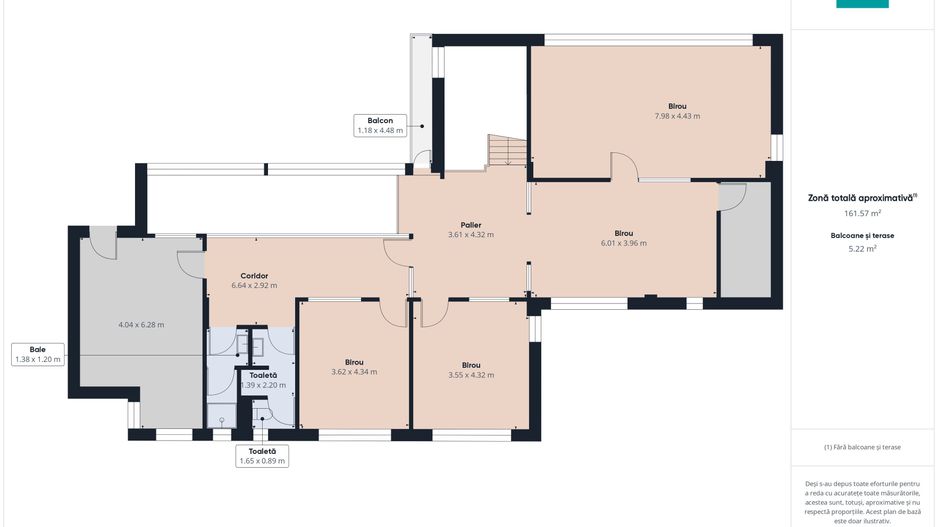
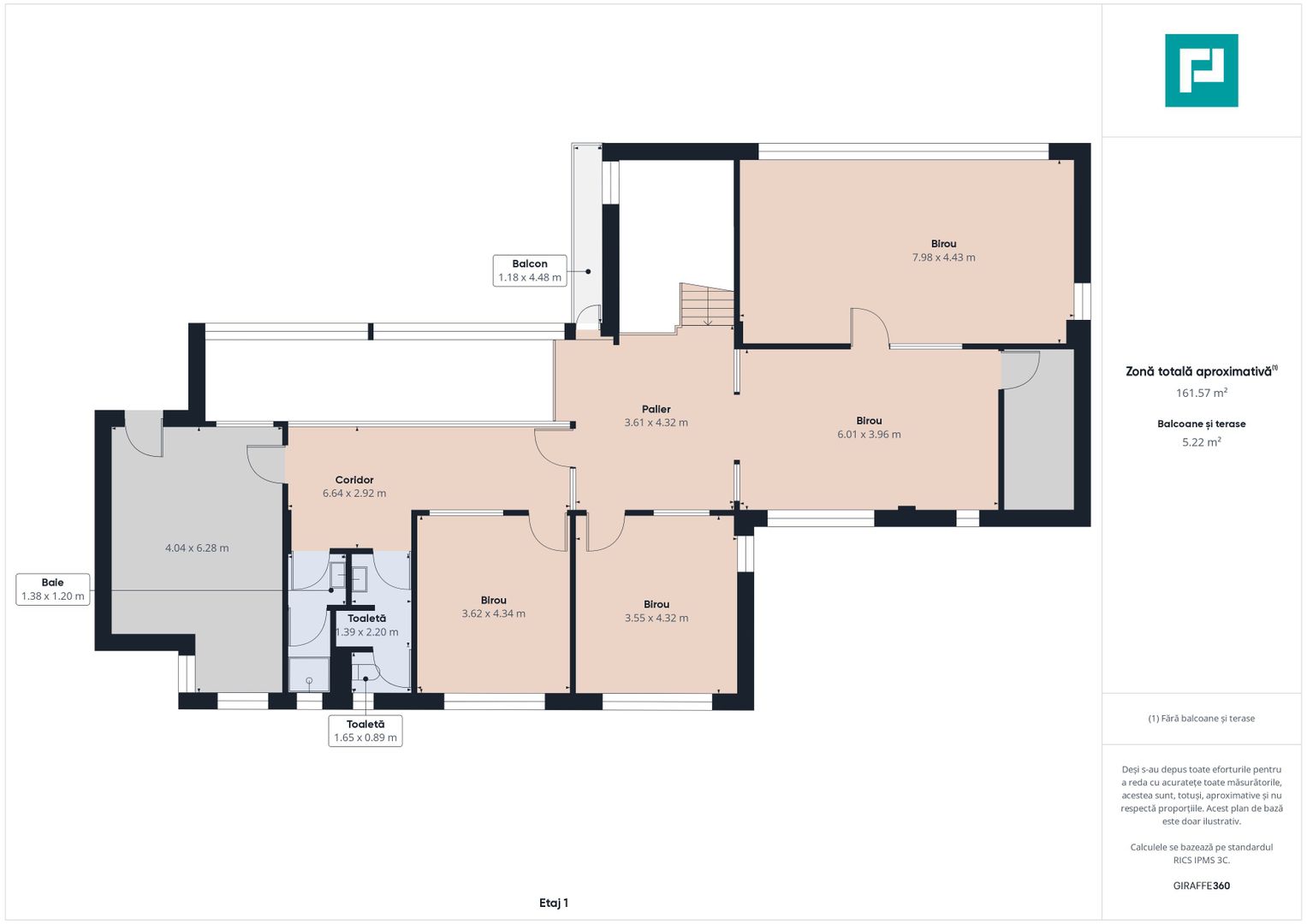
Construcția este dispusă pe parter și etaj, este dotată cu o curte proprie cu spații verzi, parcare pentru 10 mașini, și este împărițită astfel:

PARTER

- sală de așteptare cu recepție;

- sală de ședințe;

- 3 birouri;

- bucătărie;

- hol;

- 2 băi.

ETAJ

- hol;

- 5 birouri;

- 2 arhive/camere depozitare;

- 2 băi;

- terasă;

În spatele acestei clădiri s-a construit recent o hală cu o suprafață de aproximativ 400 mp, care poate fi și aceasta închiriată separat.

Daca ți-am stârnit interesul și dorești mai multe detalii despre această locație, nu ezita să mă contactezi!

Andrei Lăluciu - Consultant Imobiliar PropertyLab

Telefon 0753 934 085

Email andrei.laluciu@propertylab.ro

Citește mai mult

  • Tip imobil
    Clădire birouri
  • Trafic pietonal
    Fără trafic pietonal
  • Etaj
    1
  • Număr camere
    9
  • Număr băi
    4
  • Număr terase
    1
  • Număr bucătării
    1
  • Suprafață construită
    380 mp
  • Suprafață utilă
    340 mp
  • Front stradal
    50.0 m
  • Vitrină (m)
    10.0 m
  • Înălțime interioară
    3.0
  • Disponibilitate
    Imediat
  • Compartimentare spațiu
    Compartimentat
  • Număr locuri parcare
    10
  • An construcție
    2015
  • Construcție nouă
    Da
  • Număr etaje clădire
    1

Facilități

Afișare logo pe clădire
Apă
Canalizare
Centrală termică
Curent
Echipamente moderne / silențioase
Gaz
Grupuri sanitare amenajate și utilate
Irigații
Parcare biciclete
Parcare deschisă
Posibilitate terasă
Sistem de alarmă
Sistem de ventilație
Sistem electric inteligent
Vedere spre oraș
Vestiar
Almira Boboc - PROPERTY LAB
Almira Boboc
Real Estate Consultant Arad

+40 745 069 393


Solicită chiar acum o vizionare
Telefon
Email
Sună acum Solicită vizionare
Necesare:

Site-ul nu poate funcționa corect fără aceste cookie-uri. Vezi cookie-urile

Statistică:

Strângem statistici anonime despre voi, vizitatorii unici, pentru a vă îmbunătăți experiența dumneavoastră. Vezi cookie-urile

Marketing:

Pentru a ne promova mai eficient serviciile noastre, folosim cookies pentru a vă identifica și a vă oferi proprietăți și servicii personalizate. Vezi cookie-urile

Acest site folosește cookies, află detalii. Alege ce tipuri de cookies dorești să permitem: