ID CP2665529

Pensiune D+P+E+M, posibilitate de inchiriere.

ID CP2665529

297,000 €

Spațiu comercial de vânzare
Podgoria, Arad
633 mp
1960

Pensiune D+P+E+M – Calea Iuliu Maniu, Arad

Vă propunem spre vânzare o oportunitate unică de investiție: o fostă pensiune situată pe Calea Iuliu Maniu din Arad.

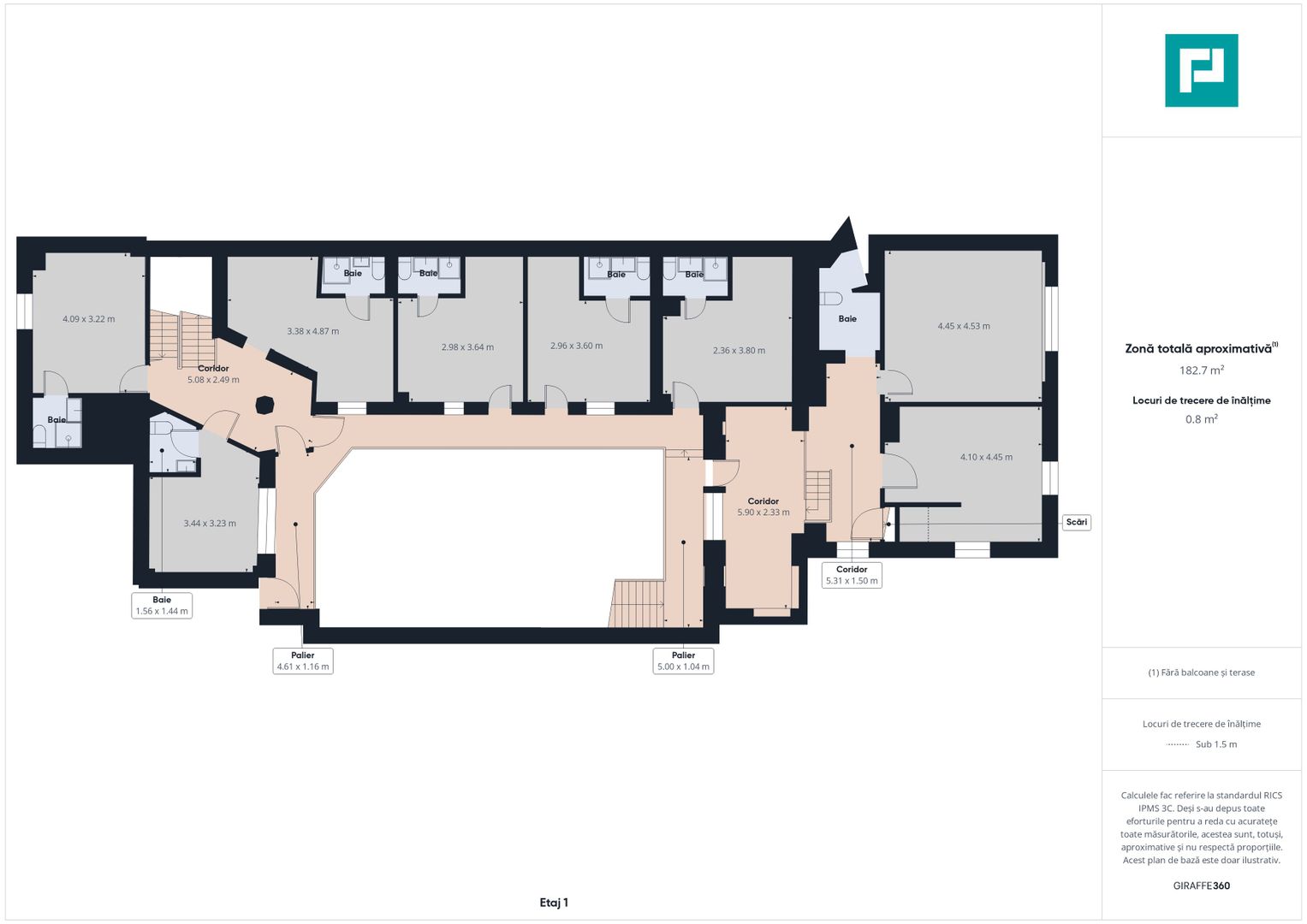
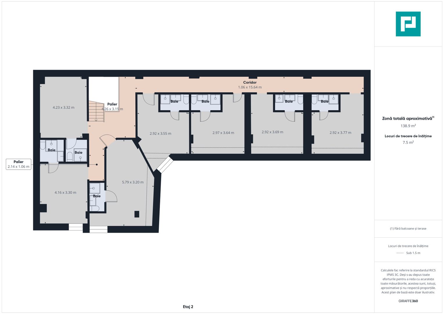
Proprietatea necesită lucrări de reabilitare, însă oferă un potențial excelent pentru diverse activități. Dispune de 21 de camere și 19 băi (fiecare cameră având baie proprie), fiind racordată la toate utilitățile: apă, gaz, canalizare și curent.

Două camere de la etajul 1 necesită renovare completă, însă restul imobilului nu presupune investiții majore.

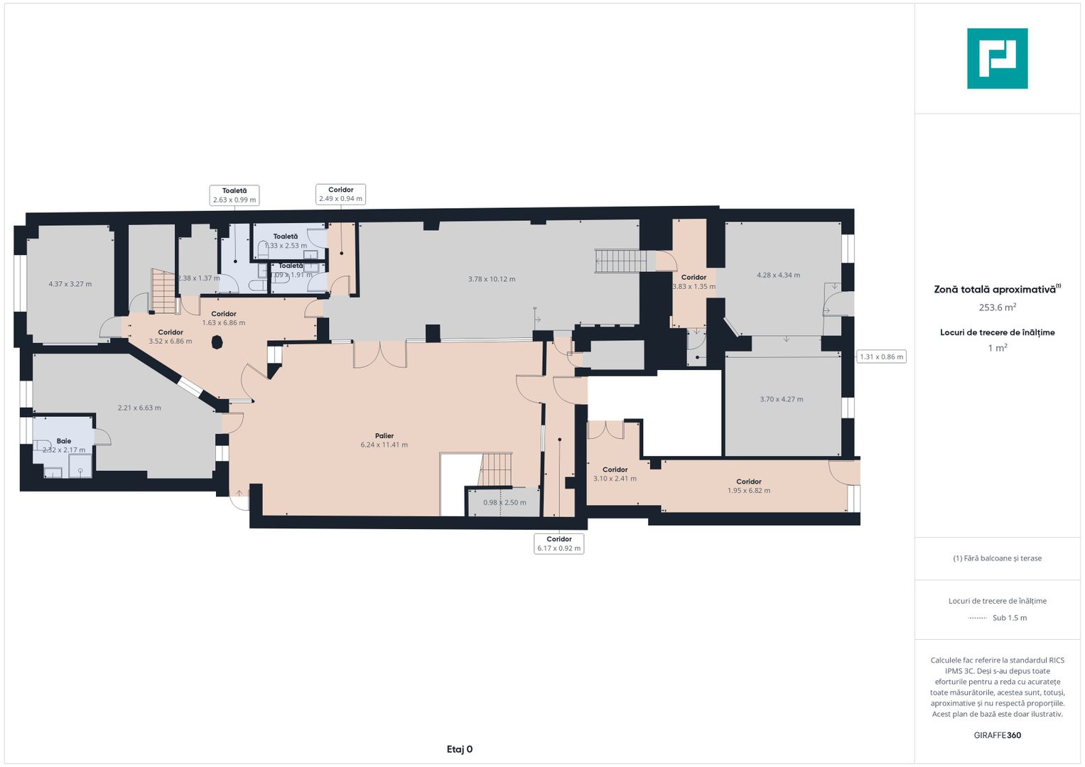
La demisol se află un spațiu independent, cu intrare separată, dar care este totodată conectat cu pensiunea.

De asemenea, există un al doilea demisol, accesibil exclusiv din interior, ce poate fi amenajat pentru multiple activități.

Suprafața utilă este 633mp, iar amprenta la sol 210mp

Contactați-ne astăzi pentru a programa o vizionare și pentru a descoperi potențialul acestei proprietăți!

Ghereben Emanuel - Consultant imobiliar - 0755814751

emanuel.ghereben@propertylab.ro

CP2665529

Citește mai mult

  • Tip imobil
    Centru comercial
  • Etaj
    2
  • Număr camere
    21
  • Număr băi
    19
  • Suprafață construită
    760 mp
  • Suprafață utilă
    633 mp
  • Front stradal
    14.0 m
  • Vitrină (m)
    14.0 m
  • Disponibilitate
    Imediat
  • An construcție
    1960

Facilități

Acces pentru persoane cu dizabilități
Afișare logo pe clădire
Apă
Canalizare
Contorizare separată
Curent
Gaz
Grupuri sanitare amenajate și utilate
Posibilitate terasă
Sistem de alarmă
Sistem de ventilație
Vedere spre oraș
Vestiar
Emanuel Ghereben - PROPERTY LAB
Emanuel Ghereben
Deputy Branch Manager Arad

+40 755 814 751


Solicită chiar acum o vizionare
Telefon
Email
Sună acum Solicită vizionare
Necesare:

Site-ul nu poate funcționa corect fără aceste cookie-uri. Vezi cookie-urile

Statistică:

Strângem statistici anonime despre voi, vizitatorii unici, pentru a vă îmbunătăți experiența dumneavoastră. Vezi cookie-urile

Marketing:

Pentru a ne promova mai eficient serviciile noastre, folosim cookies pentru a vă identifica și a vă oferi proprietăți și servicii personalizate. Vezi cookie-urile

Acest site folosește cookies, află detalii. Alege ce tipuri de cookies dorești să permitem: