ID CP2029772

Spațiu comercial 39 mp pe Bulevardul Revoluției

Această proprietate nu mai este activă,
te invităm să vizualizezi proprietăți similare

ID CP2029772

975 €

Spațiu comercial de închiriat
Ultracentral, Arad
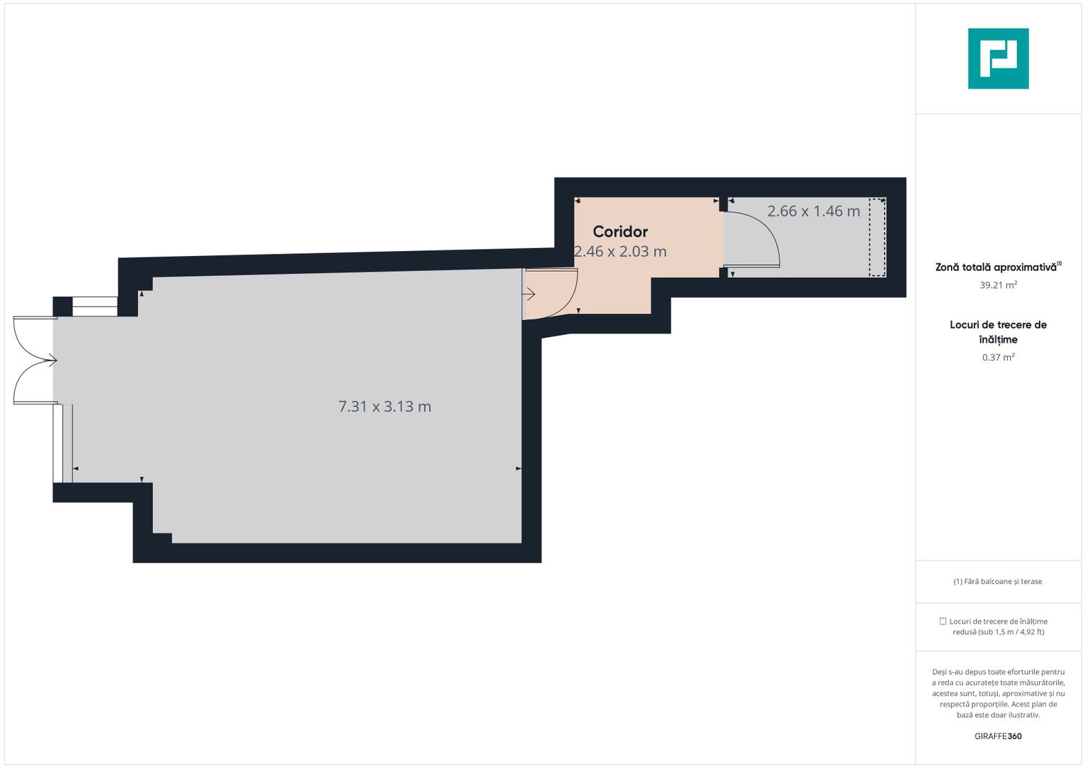
39 mp
1900

Spațiu comercial 39 mp pe Bulevardul Revoluției

Iți dorești o nouă locație pentru afacerea ta într-o zonă intens circulată din oraș?

PropertyLab iți propune un spațiu comercial pe Bulevardul Revoluției, cu o suprafață utilă de 39mp, și un front stradal de 2,5 m.

Compartimentarea este flexibilă, poate fi open space, sau împărțit în mai multe încăperi.

Dorești o vizionare? Nu ezita să mă contactezi !

Almira Boboc - Consultant Imobiliar PropertyLab

Telefon: 0745 06 93 93

Email: almira.boboc@propertylab.ro

Cod Proprietate 2029772

Citește mai mult

  • Tip imobil
    Casă / Vilă
  • Trafic pietonal
    Intens
  • Etaj
    Parter
  • Număr camere
    2
  • Suprafață construită
    45 mp
  • Suprafață utilă
    39 mp
  • Front stradal
    3.0 m
  • Vitrină (m)
    3.0 m
  • Disponibilitate
    Imediat
  • Compartimentare spațiu
    Flexibil
  • An construcție
    1900
  • Număr etaje clădire
    2
  • Are demisol
    Da

Facilități

Acces pentru persoane cu dizabilități
Afișare logo pe clădire
Apă
Canalizare
Contorizare separată
Curent
Posibilitate terasă
Necesare:

Site-ul nu poate funcționa corect fără aceste cookie-uri. Vezi cookie-urile

Statistică:

Strângem statistici anonime despre voi, vizitatorii unici, pentru a vă îmbunătăți experiența dumneavoastră. Vezi cookie-urile

Marketing:

Pentru a ne promova mai eficient serviciile noastre, folosim cookies pentru a vă identifica și a vă oferi proprietăți și servicii personalizate. Vezi cookie-urile

Acest site folosește cookies, află detalii. Alege ce tipuri de cookies dorești să permitem: