ID CP2659170

Casă la roșu P+M de vânzare–Cartier nou, Fântânele

ID CP2659170

75,000 € (negociabil)

Casă / Vilă cu 4 camere de vânzare
Fantanele
109 mp
2022

Casă la roșu P+M de vânzare – Cartier nou, Fântânele, județul Arad

PropertyLab vă propune spre vânzare o casă la roșu, situată în cartier nou din localitatea Fântânele, la aproximativ 6 km de municipiul Arad. Zona este liniștită, cu acces rapid către oraș.

Detalii proprietate:

Suprafață teren: 300 mp (neîmprejmuit)

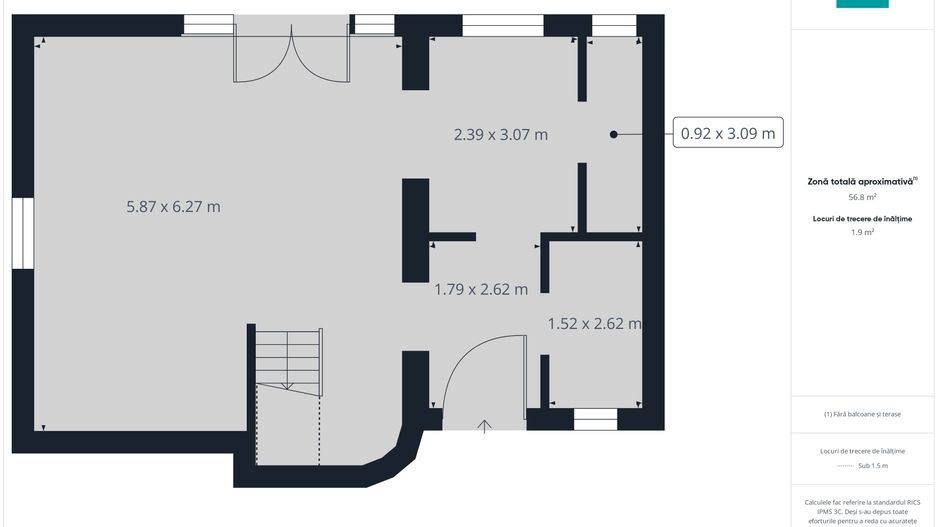
Suprafață construită: 136 mp

Suprafață utilă: 109 mp

Regim înălțime: Parter + Mansardă

An construcție: 2022

Structură: cărămidă Porotherm, acoperiș țiglă ceramică

Stadiu: la roșu (pereți exteriori și interiori realizați, acoperiș montat, ferestre PVC instalate)

Compartimentare propusă (conform proiectului):

Parter: living spațios cu ieșire în curte, bucătărie, baie, spațiu tehnic

Mansardă: 3 dormitoare, baie, hol

(Compartimentarea poate fi adaptată după preferințele cumpărătorului)

Utilități: apă, curent, gaz

Localizare: proprietatea se află într-un cartier rezidențial nou, în plină dezvoltare, la doar 5 km de municipiul Arad, cu acces facil la școli, magazine și transport.

Sună acum pentru detalii și programează o vizionare!

Valea Alexandra - consultant imobiliar PropertyLab

E-mail: alexandra.valea@propertylab.ro

Telefon: 0746756071

CP2659170

Citește mai mult

  • Număr camere
    4
  • Dormitoare
    3
  • Număr bucătării
    1
  • Număr băi
    2
  • Disponibilitate
    Imediat
  • Tip casă
    Individual
  • Stare interior
    Nou
  • Anul finisării
    2022
  • Suprafață utilă
    109 mp
  • Suprafață construită
    136 mp
  • Suprafață construită la sol (Amprentă)
    68.0 mp
  • Suprafață teren
    300 mp
  • Stadiu construcție
    La roșu
  • An construcție
    2022
  • Construcție nouă
    Da
  • Are mansardă
    Da

Facilități

Alexandra Valea - PROPERTY LAB
Alexandra Valea
Real Estate Consultant Arad

+40 746 756 071


Solicită chiar acum o vizionare
Telefon
Email
Sună acum Solicită vizionare
Necesare:

Site-ul nu poate funcționa corect fără aceste cookie-uri. Vezi cookie-urile

Statistică:

Strângem statistici anonime despre voi, vizitatorii unici, pentru a vă îmbunătăți experiența dumneavoastră. Vezi cookie-urile

Marketing:

Pentru a ne promova mai eficient serviciile noastre, folosim cookies pentru a vă identifica și a vă oferi proprietăți și servicii personalizate. Vezi cookie-urile

Acest site folosește cookies, află detalii. Alege ce tipuri de cookies dorești să permitem: