ID CP2743402

Casă cu 3 camere și teren generos, Pâncota

ID CP2743402

85,000 €

Casă / Vilă cu 3 camere de vânzare
Central, Pancota
80 mp
2011

De vânzare – Casă cu 3 camere și teren generos, Pâncota

Vând casă situată în Pâncota, într-o zonă liniștită, ideală pentru o familie care caută confort și intimitate.

Detalii proprietate:

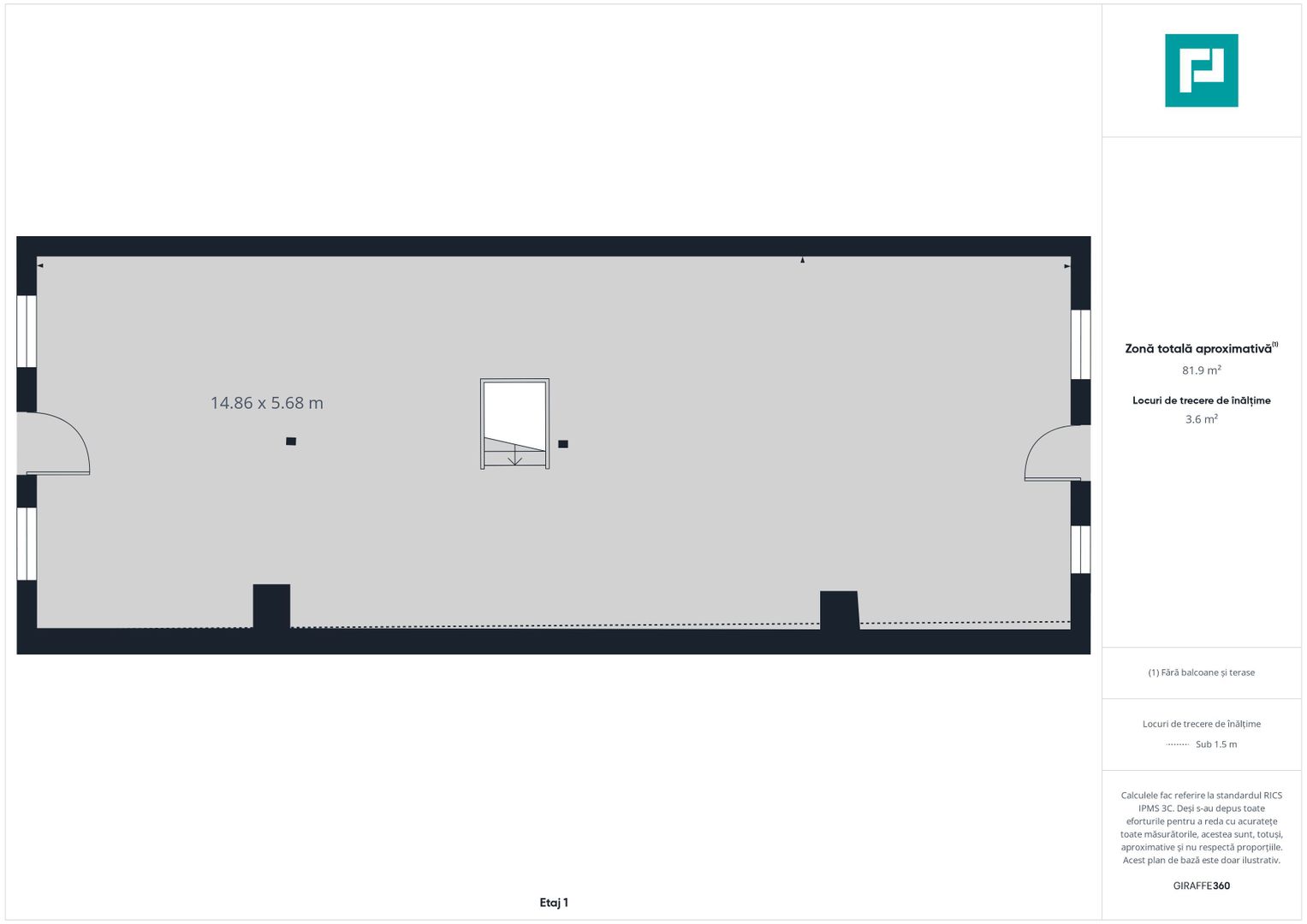
Suprafață construită: 110 mp

Suprafață totală teren: 807 mp

Front stradal: 15 m liniari

Compartimentare: 3 camere, bucătărie, baie, hol, cămară

Proprietatea este liberă de sarcini

Posibilitate de mansardare pentru extindere spațiu locativ

Avantaje:

Zonă liniștită, cu acces facil la facilități

Teren generos, pretabil pentru amenajare grădină, terasă sau spațiu de relaxare

Casă solidă, cu potențial de extindere prin mansardare

O oportunitate excelentă pentru locuință permanentă sau investiție într-o zonă rezidențială apreciată!

Pentru detalii suplimentare și vizionare, vă stăm la dispoziție.

Pentru mai multe detalii și programarea unei vizionări, vă stăm la dispoziție.

Tudor Trașcă - Consultant imobiliar PropertyLAB

Telefon: 0730 650 235

E-mail: tudor.trasca@propertylab.ro

Dumitrita Jacot - Consultant imobiliar PropertyLAB

Telefon: 0790 474 979

E-mail: Dumitrita.jacot@propertylab.ro

Cod proprietate 2743402

Citește mai mult

  • Număr camere
    3
  • Dormitoare
    2
  • Număr bucătării
    1
  • Număr băi
    1
  • Disponibilitate
    Imediat
  • Tip casă
    Individual
  • Stare interior
    Finisat clasic
  • Anul finisării
    2015
  • Suprafață utilă
    80 mp
  • Suprafață construită
    110 mp
  • Suprafață construită la sol (Amprentă)
    95.0 mp
  • Suprafață teren
    807 mp
  • Deschidere
    15 m
  • Acoperiș
    Țiglă
  • Stadiu construcție
    Finalizată
  • An construcție
    2011
  • Construcție nouă
    Da
  • Tip construcție
    Cărămidă

Facilități

Aer condiționat
Apă
Aragaz
Cabină de duș
Canalizare
CATV
Centrală proprie
Curent
Gaz
Iluminat stradal
Internet
Mijloace de transport în comun
Străzi asfaltate
Telefon
Tudor Trașcă - PROPERTY LAB
Tudor Trașcă
Real Estate Consultant Arad

+40 730 650 235


Solicită chiar acum o vizionare
Telefon
Email
Sună acum Solicită vizionare
Necesare:

Site-ul nu poate funcționa corect fără aceste cookie-uri. Vezi cookie-urile

Statistică:

Strângem statistici anonime despre voi, vizitatorii unici, pentru a vă îmbunătăți experiența dumneavoastră. Vezi cookie-urile

Marketing:

Pentru a ne promova mai eficient serviciile noastre, folosim cookies pentru a vă identifica și a vă oferi proprietăți și servicii personalizate. Vezi cookie-urile

Acest site folosește cookies, află detalii. Alege ce tipuri de cookies dorești să permitem: