ID CP2291498

Casa cu potential multiplu, Bolintin Deal

Această proprietate nu mai este activă,
te invităm să vizualizezi proprietăți similare

ID CP2291498

900,000 €

Casă / Vilă cu 10 camere de vânzare
Bolintin-Deal
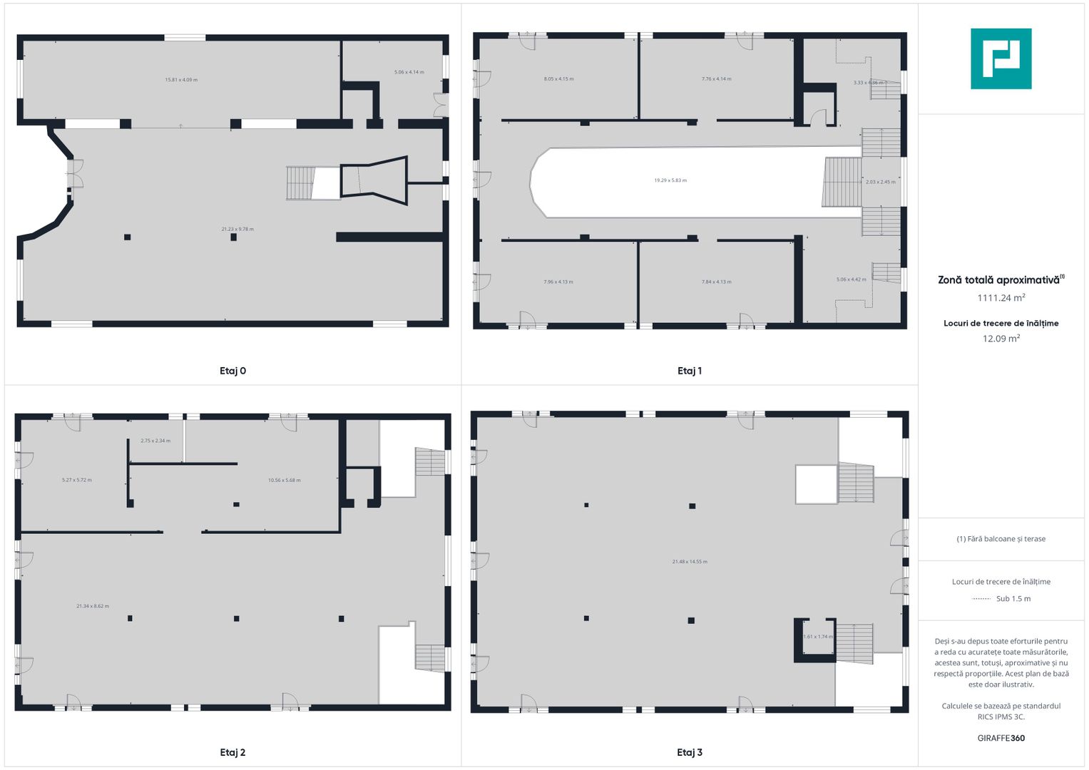
1,111 mp
2023

Vă prezentăm o construcție de calitate superioară, cu exteriorul finisat și tencuit, iar interiorul la stadiul de roșu. Situată în Bolintin Deal, această proprietate oferă un potențial excelent atât pentru utilizare rezidențială, cât și comercială.

Detalii proprietate:

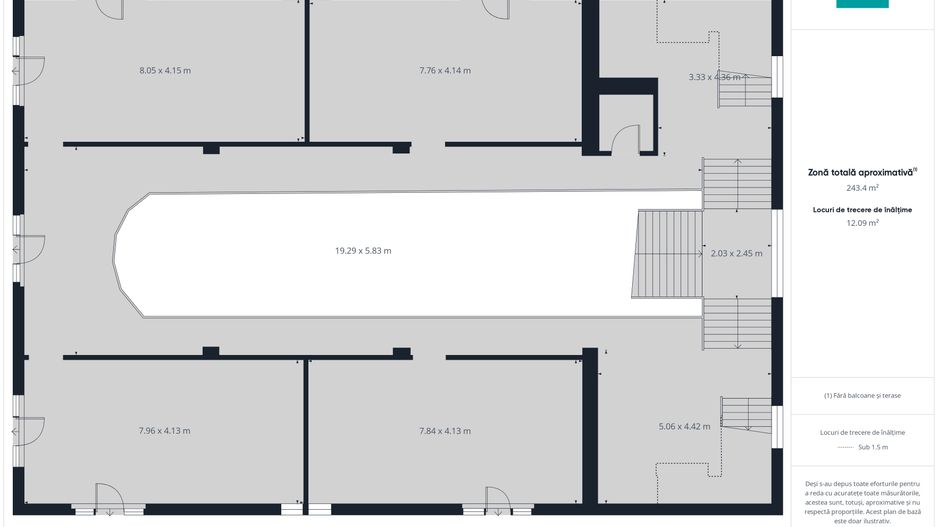
Suprafață utilă: Aproximativ 1111 mp, distribuită pe 4 niveluri.

Suprafață teren: 2415 mp, cu un front stradal de 21 metri pe două străzi.

Construcție: Realizată din beton armat, fier și pereți de cărămidă de 50 cm, asigurând durabilitate, stabilitate și o izolație termică excelentă.

Utilități: Toate utilitățile sunt disponibile la stradă: curent electric, apă, canalizare și gaz.

Destinații posibile:

Proiectată inițial ca un conac, proprietatea este versatilă și poate fi utilizată pentru:

Laborator farmaceutic

Clinică

Grădiniță sau afterschool

Sală de evenimente

Motel

Această construcție de înaltă calitate reprezintă o oportunitate excelentă de investiție, oferind flexibilitate pentru a adapta spațiul conform nevoilor dumneavoastră.

Pentru mai multe detalii sau pentru a programa o vizionare, nu ezitați să mă contactați!

Denise Dobra Consultant imobiliar PropertyLAB

Tel: 0374 484 460

E-mail: denise.dobra@propertylab.ro

cod proprietate 2291498

Citește mai mult

  • Număr camere
    10
  • Număr băi
    6
  • Disponibilitate
    Imediat
  • Tip casă
    Individual
  • Stare interior
    Nou
  • Suprafață utilă
    1,111 mp
  • Suprafață construită
    1,222 mp
  • Suprafață teren
    2,415 mp
  • Deschidere
    21 m
  • Stadiu construcție
    La roșu
  • An construcție
    2023
  • Construcție nouă
    Da
  • Tip construcție
    Cărămidă

Facilități

Apă
Canalizare
CATV
Curent
Gaz
Iluminat stradal
Internet
Mijloace de transport în comun
Străzi asfaltate
Telefon
Necesare:

Site-ul nu poate funcționa corect fără aceste cookie-uri. Vezi cookie-urile

Statistică:

Strângem statistici anonime despre voi, vizitatorii unici, pentru a vă îmbunătăți experiența dumneavoastră. Vezi cookie-urile

Marketing:

Pentru a ne promova mai eficient serviciile noastre, folosim cookies pentru a vă identifica și a vă oferi proprietăți și servicii personalizate. Vezi cookie-urile

Acest site folosește cookies, află detalii. Alege ce tipuri de cookies dorești să permitem: