ID CP2652658

Apartament 3 camere, Brâncoveanu

ID CP2652658

96,000 € (negociabil)

Apartament cu 3 camere de vânzare
Brancoveanu, Bucuresti
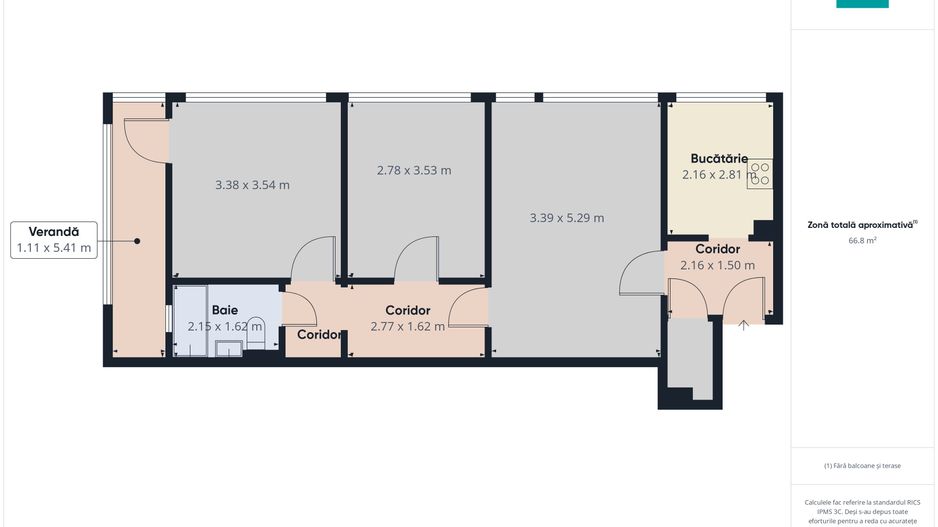
61.45 mp
1970

PropertyLab vă oferă spre vânzare un apartament cu 3 camere, semidecomandat, situat la etajul 6 al unui imobil cu 9 etaje, într-o zonă liniștită, bine conectată la infrastructura orașului.

Locuința dispune de o suprafață utilă de 61,45 mp, completată de un balcon spațios de 6 mp – perfect pentru relaxare sau amenajarea unui colț verde. Apartamentul este bine compartimentat, luminos și aerisit, oferind un ambient plăcut și primitor.

Poziționat în apropierea mijloacelor de transport în comun, a magazinelor, școlilor și altor facilități importante, apartamentul reprezintă o alegere ideală pentru o familie sau pentru oricine își dorește un cămin confortabil într-o locație avantajoasă.

De asemenea, apartamentul permite montarea unei centrale termice, ceea ce oferă un plus de confort și eficiență energetică.

Pentru mai multe detalii sau pentru a stabili o vizionare, nu ezitați să ne contactați!

CP2652658

Citește mai mult

  • Tip apartament
    Apartament
  • Compartimentare
    Semidecomandat
  • Număr camere
    3
  • Dormitoare
    2
  • Număr bucătării
    1
  • Număr băi
    1
  • Geam la baie
    Da
  • Etaj
    6
  • Suprafață utilă
    61.45 mp
  • Disponibilitate
    Imediat
  • Confort
    1
  • Stare interior
    Semifinisat
  • Număr balcoane
    1
  • Imobil
    Bloc de apart.
  • Stadiu construcție
    Finalizată
  • An construcție
    1970
  • Tip construcție
    Beton
  • Număr etaje clădire
    9

Facilități

Apă
Cadă
Canalizare
CATV
Curent
Gaz
Iluminat stradal
Internet
Mijloace de transport în comun
Străzi asfaltate
Telefon
Termoficare
Ușă intrare metal
Uși interior lemn
Diana Ponoran
Support Specialist

+40 374 484 468


Solicită chiar acum o vizionare
Telefon
Email
Sună acum Solicită vizionare
Necesare:

Site-ul nu poate funcționa corect fără aceste cookie-uri. Vezi cookie-urile

Statistică:

Strângem statistici anonime despre voi, vizitatorii unici, pentru a vă îmbunătăți experiența dumneavoastră. Vezi cookie-urile

Marketing:

Pentru a ne promova mai eficient serviciile noastre, folosim cookies pentru a vă identifica și a vă oferi proprietăți și servicii personalizate. Vezi cookie-urile

Acest site folosește cookies, află detalii. Alege ce tipuri de cookies dorești să permitem: