ID CP1749806

Hală industrială cu teren de 7330mp zona Aeroport

Această proprietate nu mai este activă,
te invităm să vizualizezi proprietăți similare

ID CP1749806

2,449,000 € + 21% TVA

11,000 €

Spațiu industrial de vânzare
Ghiroda
2,350 mp
2022

Hală industrială cu teren de 7330mp zona Aeroport

Spațiu Industrial - 7330 mp teren total intravilan cu deschidere 50 ml - drum betonat acces TIR direct din Strada Aeroportului nr.17

PropertyLAB vă oferă în exclusivitate acest spațiu industrial cu multiple oportunități de afaceri, amplasat în vecinătatea Aeroportului Internațional ,,Traian Vuia" din Timișoara. Destinație Spații: Depozitare/producție, Logistică, Depozitare, Fabrică, Magazin, Hală producție, Reprezentanță auto.

Amplasamentul industrial-comercial este format din:

* Imobil 1, compus din teren intravilan, situat în Comuna Ghiroda Judet Timiș, Str.Aeroportului, având categoria de folosință „curti-construcții“, în suprafață de 5018 mp și următoarele construcții edificate în anul 2022 pe acest teren: Construcția C1, “Hală pentru depozitare și sediu administrativ”, cu regim de înălțime P+1E, suprafață construită la sol de 2011 mp, suprafață construită desfășurată de 2385 mp, Construcția C2, “Panou curent”, suprafață construită la sol de 24 mp.

* Imobil 2, teren extravilan, având categoria de folosință „arabil”, în suprafață de 2307 mp, alipit de Imobil 1, cu terasament de piatră concasata de 25-63 mm, putând fi utilizat ca și parcare anexă.

Alte informații:

* acoperiș tablă Lindab; materiale panouri sandwich; planșee de metal, beton armat, beton; podele mochetă; servicii birouri: supraveghere video, contorizare separată.

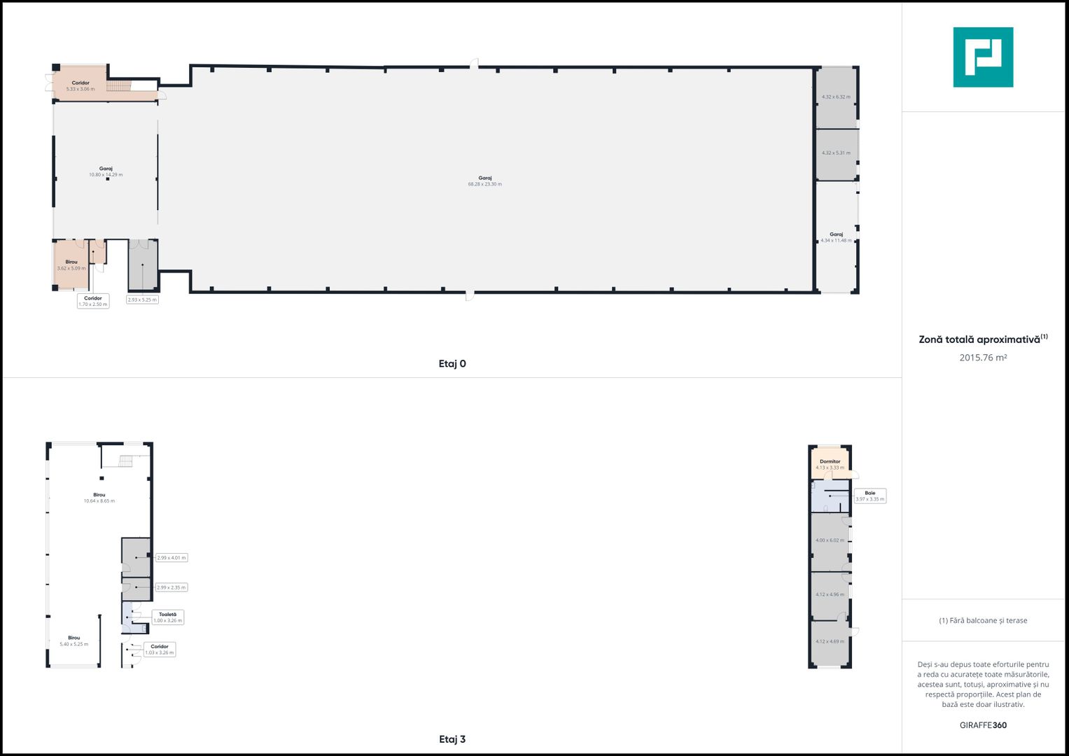
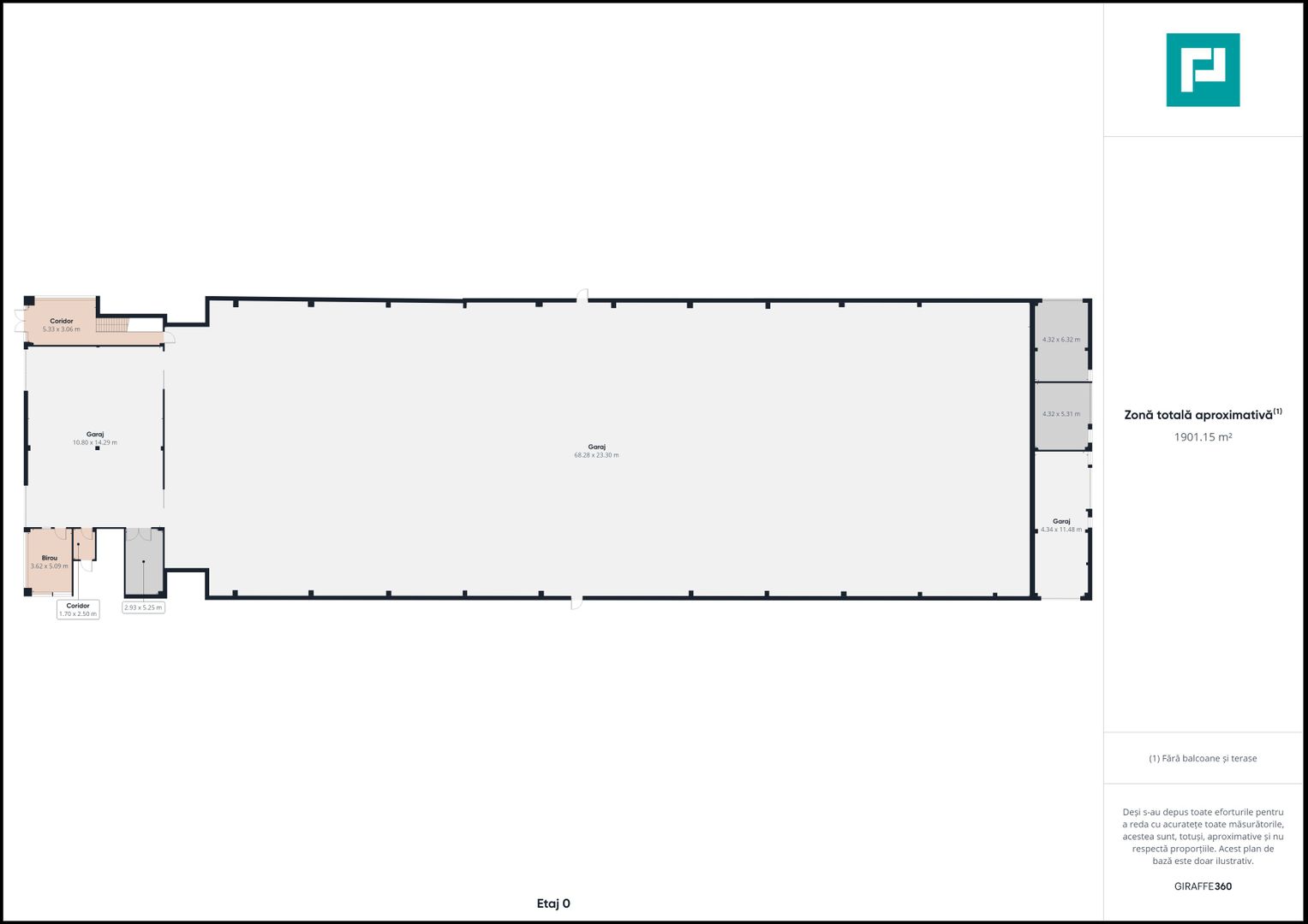
* Hala dispune conform PLAN ETAJ de: zonă birouri open space (recepție, logistică, sală de conferință, birou director, contabilitate), arhivă, sală servere, chicinetă, grupuri sanitare în suprafață de 240 mp.

și PLAN PARTER: zonă de depozitare marfă cu suprafață compactă de 1593 mp, alte 4 zone de depozitare cu suprafețe între 22-29 mp, zonă de încărcare-descărcare și alte spatii destinate personalului, precum și spațiile tehnice.

Înălțimea interioară a halei este de 9 ml la centrul ei și 7,5 ml în laterale.

* platformă betonată de 2500 mp * sistem supraveghere și sistem de alarmă * acces utilități ( apă, curent, canalizare)* aer condiționat și încălzire cu convectoare în spațiul pentru birouri * panou de curent propriu, trifazic, contorizat * pereți lavabil * ferestre termopane aluminiu * fațadă de sticlă * ușă intrare sticlă.

În momentul de față, obiectul activității îl constituie PARCARE AUTO CU PLATA, capacitatea locurilor fiind de 50 autoturisme, activitatea putând fi extinsă și asupra Imobilului 2 menționat mai sus.

Pentru mai multe informații, ne puteți contacta oricând.

Tudor Trașcă - consultant imobiliar Property Lab

Tel: 0730 650 235

E-mail: tudor.trasca@propertylab.ro

Andreea Covaci - Consultant imobiliar PropertyLAB

Tel: 0774 968 357

email: andreea.covaci@propertylab.ro

Cod proprietate 1749806

Citește mai mult

  • Tip imobil
    Hală
  • Etaj
    1
  • Clasă birouri
    A
  • Număr camere
    6
  • Număr băi
    4
  • Număr vestiare
    2
  • Număr bucătării
    1
  • An construcție
    2022
  • Construcție nouă
    Da
  • Număr locuri parcare
    50
  • Suprafață construită
    2,011 mp
  • Suprafață utilă
    2,350 mp
  • Suprafață totală birouri
    380 mp
  • Suprafață producție
    1,580 mp
  • Suprafață teren
    7,330 mp
  • Dimensiuni uși intrare
    3,5
  • Înălțime interioară
    9.0
  • Disponibilitate
    Imediat
  • Compartimentare spațiu
    Parțial compartimentat

Facilități

Acces auto
Acces TIR
Apă
Canalizare
Construcție demolabilă
Curent
Curent trifazic (380V)
Iluminat stradal
La șosea
Luminatoare
Mijloace de transport în comun
Oportunitate de investiții
Parcare deschisă
Posibilitate de compartimentare
Sistem de alarmă
Străzi asfaltate
Străzi betonate
Teren împrejmuit
Uși de acces
Utilități în zonă
Vestiar
Necesare:

Site-ul nu poate funcționa corect fără aceste cookie-uri. Vezi cookie-urile

Statistică:

Strângem statistici anonime despre voi, vizitatorii unici, pentru a vă îmbunătăți experiența dumneavoastră. Vezi cookie-urile

Marketing:

Pentru a ne promova mai eficient serviciile noastre, folosim cookies pentru a vă identifica și a vă oferi proprietăți și servicii personalizate. Vezi cookie-urile

Acest site folosește cookies, află detalii. Alege ce tipuri de cookies dorești să permitem: