ID CP2762769

Spațiu de investiții 500 mp în Periam

ID CP2762769

920 €

Spațiu industrial de închiriat
Periam
500 mp

PropertyLab oferă spre închiriere spațiu de 500 mp în Periam – fostă fabrică de pălării

Descriere generală:

PropertyLab vă propune spre închiriere un spațiu generos de 500 mp utili, situat la parter într-o clădire de producție din incinta fostei fabrici de pălării din Periam. Spațiul este ideal pentru activități care necesită suprafață mare și flexibilitate în organizare.

Destinații posibile:

Birouri cu mai multe compartimente

Producție industrială sau atelier

Depozitare și logistică

Activități comerciale sau servicii cu spațiu extins

Caracteristici principale:

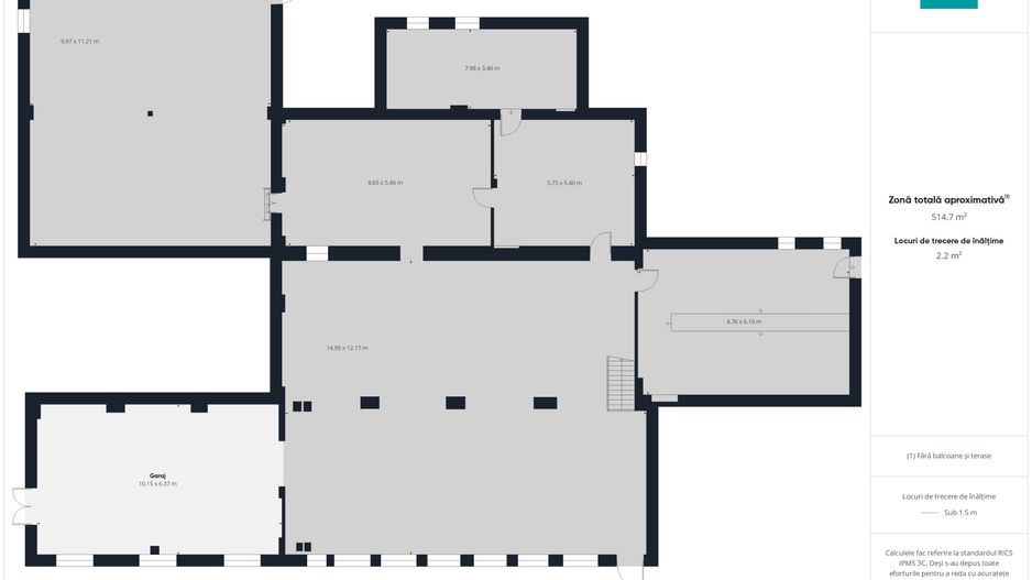
Suprafață utilă: 500 mp

Parter, cu acces direct și ușor

Posibilitate de compartimentare flexibilă în funcție de nevoi

Utilități disponibile: apă, curent electric, canalizare

Acces facil pentru livrări sau clienți

Avantaje:

Spațiu mare, potrivit pentru producție sau birouri extinse

Amplasare într-o zonă cu acces facil și vizibilitate

Flexibilitate în amenajare și utilizare

Clădire cu istoric și identitate industrială

Pentru detalii și vizionări, contactați agenții PropertyLab:

Carol Szekeres

Tel: 0729 966 649

Email:carol.szekeres@propertylab.ro

CP2762769

Citește mai mult

  • Tip imobil
    Hală
  • Etaj
    Parter
  • Număr camere
    6
  • Suprafață utilă
    500 mp
  • Disponibilitate
    Imediat

Facilități

Apă
Canalizare
Curent
Iluminat stradal
Mijloace de transport în comun
Străzi asfaltate
Carol Szekeres - PROPERTY LAB
Carol Szekeres
Real Estate Consultant Arad

+40 729 966 649


Solicită chiar acum o vizionare
Telefon
Email
Sună acum Solicită vizionare
Necesare:

Site-ul nu poate funcționa corect fără aceste cookie-uri. Vezi cookie-urile

Statistică:

Strângem statistici anonime despre voi, vizitatorii unici, pentru a vă îmbunătăți experiența dumneavoastră. Vezi cookie-urile

Marketing:

Pentru a ne promova mai eficient serviciile noastre, folosim cookies pentru a vă identifica și a vă oferi proprietăți și servicii personalizate. Vezi cookie-urile

Acest site folosește cookies, află detalii. Alege ce tipuri de cookies dorești să permitem: