ID CP2763424

Hală industrială – Giarmata.

ID CP2763424

4,800 € + 21% TVA

Spațiu industrial de închiriat
Giarmata
600 mp
2021

Hală industrială – Giarmata.

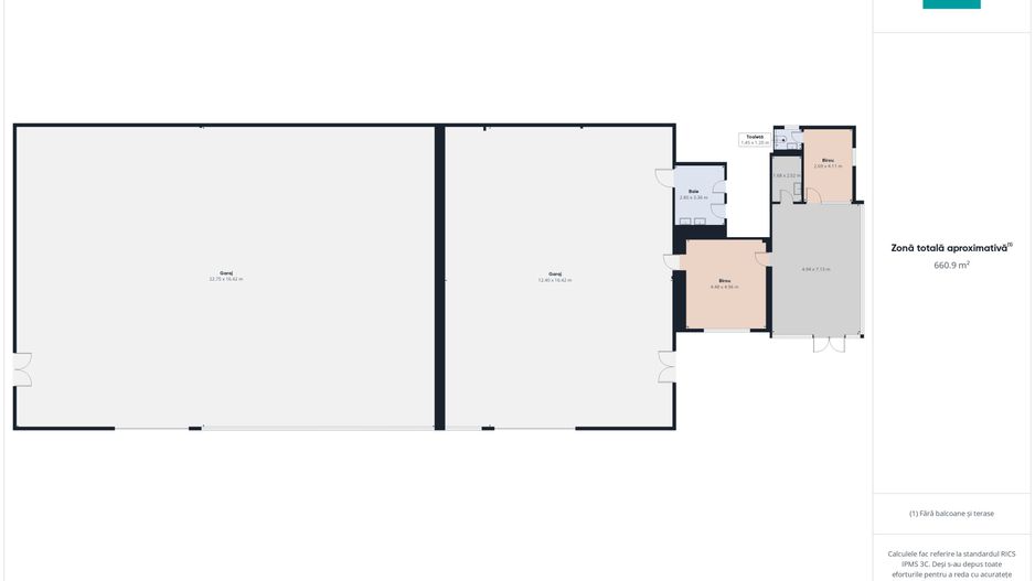
Se oferă spre închiriere o hală industrială situată în Giarmata, cu o suprafață utilă totală de 600 mp, ideală pentru activități de producție, depozitare sau servicii logistice.

Detalii tehnice:

• Suprafață hală: 600 mp

• Compartimentare: două spații independente – unul de 200 mp și unul de 400 mp, fiecare prevăzut cu poartă de acces de 4x5 m

• Birouri: 100 mp (spațiu administrativ modern)

• Înălțime interioară: 6 metri

• Teren total: 2.000 mp, împrejmuit integral cu gard

• Podea interioară: sclivisită, rezistentă la trafic greu

• Platformă exterioară: betonată, acces facil pentru camioane și TIR-uri

• Alimentare electrică: curent trifazic

• Sistem de supraveghere video funcțional

Dotări suplimentare:

• Spațiu exterior acoperit, ideal pentru depozitare suplimentară sau activități tehnice.

Proprietatea oferă condiții excelente pentru firme de producție, logistică sau distribuție, beneficiind de acces facil la drumurile principale și de o curte generoasă pentru manevrarea autovehiculelor.

Pentru detalii și vizionare:

Remus Beiușanu

Telefon: 0785.997.537

Email: remus.beiusanu@propertylab.ro

Citește mai mult

  • Tip imobil
    Hală
  • Etaj
    Parter
  • Clasă birouri
    A
  • Număr camere
    6
  • Număr băi
    3
  • Număr vestiare
    2
  • Număr bucătării
    1
  • An construcție
    2021
  • Construcție nouă
    Da
  • Suprafață utilă
    600 mp
  • Suprafață totală birouri
    100 mp
  • Suprafață producție
    600 mp
  • Suprafață teren
    2,000 mp
  • Dimensiuni uși intrare
    4x5
  • Înălțime interioară
    6.0
  • Disponibilitate
    Imediat
  • Compartimentare spațiu
    Parțial compartimentat

Facilități

Acces auto
Acces TIR
Apă
Canalizare
Curent
Curent trifazic (380V)
Iluminat stradal
Luminatoare
Mijloace de transport în comun
Parcare deschisă
Sistem de alarmă
Străzi asfaltate
Teren împrejmuit
Uși de acces
Vestiar
Remus Beiușanu - PROPERTY LAB
Remus Beiușanu
Deputy Branch Manager Timișoara

+40 785 997 537


Solicită chiar acum o vizionare
Telefon
Email
Sună acum Solicită vizionare
Necesare:

Site-ul nu poate funcționa corect fără aceste cookie-uri. Vezi cookie-urile

Statistică:

Strângem statistici anonime despre voi, vizitatorii unici, pentru a vă îmbunătăți experiența dumneavoastră. Vezi cookie-urile

Marketing:

Pentru a ne promova mai eficient serviciile noastre, folosim cookies pentru a vă identifica și a vă oferi proprietăți și servicii personalizate. Vezi cookie-urile

Acest site folosește cookies, află detalii. Alege ce tipuri de cookies dorești să permitem: