ID CP3061219

Hală cu suprafața de 675 mp în Arad

ID CP3061219

2,025 € + 21% TVA

Spațiu industrial de închiriat
UTA, Arad
675 mp
1970

PropertyLab vă propune spre închiriere o hală industrială în Arad, ideală pentru producție sau depozitare.

Cu o suprafață generoasă de 675 mp, această proprietate reprezintă o soluție eficientă pentru companiile care au nevoie de spațiu optim pentru depozitare, logistică sau activități de producție, beneficiind totodată de acces facil către oraș.

Caracteristici principale:

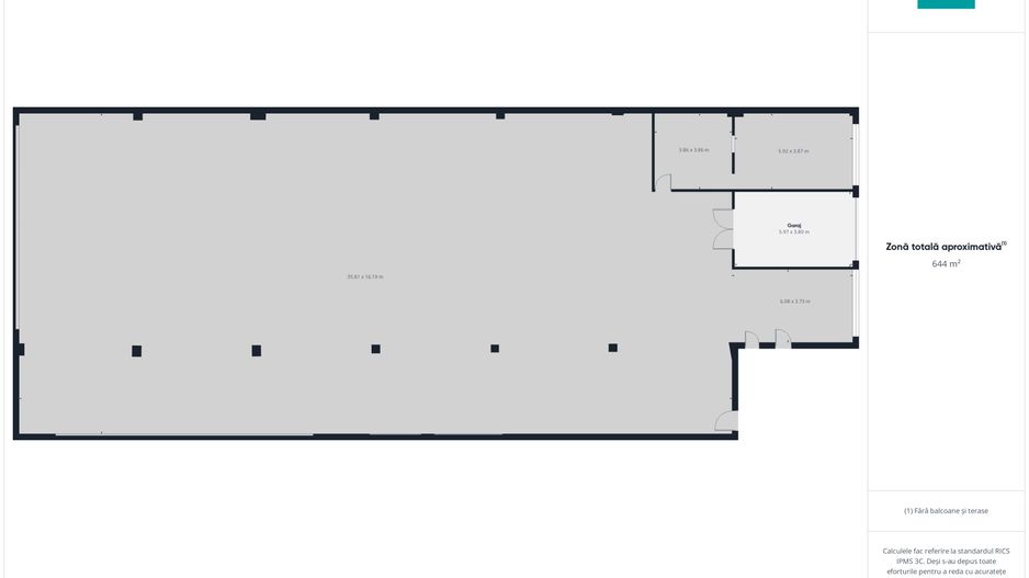
Suprafață totală: 675 mp

Spațiu open space, ușor de compartimentat

Acces TIR pentru manipularea mărfii

Autorizație PSI

Specificații tehnice:

Înălțime utilă: 4 m

Dimensiuni poartă acces: 3 m x 3,875 m

Utilități: apă, curent trifazic 380V, canalizare

Locuri de parcare disponibile

Alte avantaje:

Incintă securizată

Spații comune bine întreținute

Acces facil pe străzi asfaltate și iluminate

Apropiere de mijloace de transport în comun

Posibilitate de parcare suplimentară

Flexibilitate contractuală – ideală pentru companii în proces de relocare sau optimizare operațională

Cauți o hală potrivită pentru dezvoltarea afacerii tale?

Noi avem soluția!

Sună acum pentru mai multe detalii și programează o vizionare.

Raluca Marinescu Consultant imobiliar PropertyLab

Telefon: 0755 083 764

e-mail: raluca.marinescu@propertylab.ro

Cod proprietate: 3061219

Citește mai mult

  • Tip imobil
    Hală
  • Etaj
    Parter
  • Număr camere
    3
  • Număr băi
    5
  • An construcție
    1970
  • Număr locuri parcare
    4
  • Suprafață construită
    675 mp
  • Suprafață utilă
    675 mp
  • Înălțime interioară
    4.0
  • Disponibilitate
    Imediat
  • Compartimentare spațiu
    Open space

Facilități

Acces auto
Acces TIR
Apă
Canalizare
Curent
Curent trifazic (380V)
Iluminat stradal
Mijloace de transport în comun
Parcare deschisă
Străzi asfaltate
Raluca Marinescu - PROPERTY LAB
Raluca Marinescu
Real Estate Consultant Arad

+40 755 083 764


Solicită chiar acum o vizionare
Telefon
Email
Sună acum Solicită vizionare
Necesare:

Site-ul nu poate funcționa corect fără aceste cookie-uri. Vezi cookie-urile

Statistică:

Strângem statistici anonime despre voi, vizitatorii unici, pentru a vă îmbunătăți experiența dumneavoastră. Vezi cookie-urile

Marketing:

Pentru a ne promova mai eficient serviciile noastre, folosim cookies pentru a vă identifica și a vă oferi proprietăți și servicii personalizate. Vezi cookie-urile

Acest site folosește cookies, află detalii. Alege ce tipuri de cookies dorești să permitem: