ID CP2983182

Hală industrială nouă, 524mp în zona de Nord

ID CP2983182

2,620 € + 21% TVA

Spațiu industrial de închiriat
Sanandrei
524 mp
2025

Hală industrială nouă, 524mp cu acces facil la centură & autostradă

Se oferă spre închiriere hală industrială nou construită (2025), realizată din prefabricate din beton, ideală pentru activități de depozitare, producție ușoară sau logistică.

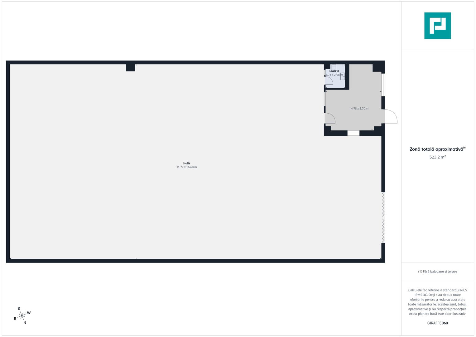
- Suprafață utilă totală: 524 mp

- Birouri: 30 mp (cu acces separat pietonal)

- Înălțime minimă hală: 7 m

- Înălțime maximă hală: 8 m

Dotări și facilități:

• Podea industrială din beton elicopterizat, rezistentă la trafic intens

• Poartă acces marfă: 4 m (lățime) x 5 m (înălțime)

• Ușă acces pietonal în zona de birouri

• Spațiu birouri amenajat + grup sanitar

• Utilități complete: apă curentă, canalizare și branșament gaz

• Sistem de aer condiționat (răcire + încălzire)

• Curent trifazic, putere instalată până la 20 kW

• Luminatoare pentru aport optim de lumină naturală

• Posibilitate de depozitare suplimentară deasupra zonei de birouri

Acces & localizare:

• Acces rapid și facil către șoseaua de centură

• Conexiune excelentă cu autostrada prin noua descărcare din Calea Aradului

Destinații recomandate:

Depozitare, logistică, producție, atelier, showroom cu zonă de birouri.

Proprietatea oferă condiții excelente pentru firme de producție, logistică sau distribuție, beneficiază de acces facil la drumurile principale și de o curte generoasă pentru manevrarea autovehiculelor.

Pentru detalii și vizionare:

Remus Beiușanu

Telefon: 0785.997.537

Email: remus.beiusanu@propertylab.ro

CP2983182

Citește mai mult

  • Tip imobil
    Hală
  • Etaj
    Parter
  • Număr camere
    3
  • Număr băi
    1
  • Număr vestiare
    1
  • An construcție
    2025
  • Construcție nouă
    Da
  • Suprafață utilă
    524 mp
  • Suprafață totală birouri
    30 mp
  • Suprafață depozitare
    524 mp
  • Dimensiuni uși intrare
    4x5
  • Înălțime interioară
    7.0
  • Disponibilitate
    Imediat

Facilități

Acces auto
Acces TIR
Apă
Canalizare
Curent
Curent trifazic (380V)
Gaz
Iluminat stradal
La șosea
Luminatoare
Mijloace de transport în comun
Oportunitate de investiții
Parcare deschisă
Posibilitate de compartimentare
Străzi asfaltate
Teren împrejmuit
Uși de acces
Vestiar
Remus Beiușanu - PROPERTY LAB
Remus Beiușanu
Deputy Branch Manager Timișoara

+40 785 997 537


Solicită chiar acum o vizionare
Telefon
Email
Sună acum Solicită vizionare
Necesare:

Site-ul nu poate funcționa corect fără aceste cookie-uri. Vezi cookie-urile

Statistică:

Strângem statistici anonime despre voi, vizitatorii unici, pentru a vă îmbunătăți experiența dumneavoastră. Vezi cookie-urile

Marketing:

Pentru a ne promova mai eficient serviciile noastre, folosim cookies pentru a vă identifica și a vă oferi proprietăți și servicii personalizate. Vezi cookie-urile

Acest site folosește cookies, află detalii. Alege ce tipuri de cookies dorești să permitem: