ID CP2778719

Spațiu versatil de 300 mp în Periam

ID CP2778719

550 €

Spațiu industrial de închiriat
Periam
306 mp

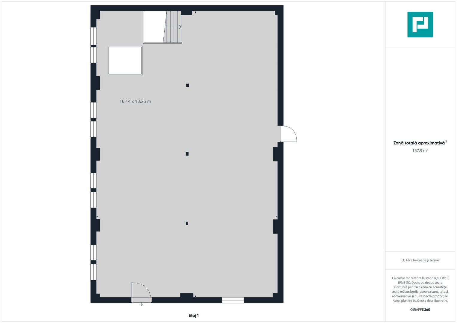
PropertyLab vă propune spre închiriere un spațiu de 130 mp, situat la parter și mezanin într-o clădire din incinta fostei fabrici de pălării din Periam. Nivelul mezanin poate fi eliminat, rezultând un spațiu generos cu înălțimea interioară de 7 m, ideal pentru activități care necesită volum mare.

Destinații posibile:

Depozitare / logistică

Crama sau spațiu pentru vinuri

Magazin de prezentare sau showroom (spațiu cu vizibilitate stradală)

Activități comerciale sau servicii care necesită spațiu înalt

Caracteristici principale:

Suprafață totală: 306 mp

Parter + mezanin, cu posibilitate de eliminare a mezaninului

Înălțime interioară: până la 7 m

Acces direct din stradă

Utilități disponibile: apă, curent electric, canalizare

Posibilitate de amenajare conform nevoilor chiriașului

Avantaje:

Spațiu flexibil, cu posibilitate de configurare a înălțimii interioare

Vizibilitate și acces facil pentru clienți și aprovizionare

Potrivit pentru depozitare, showroom sau activități comerciale

Clădire cu caracter industrial și istoric

Pentru detalii și vizionări, contactați agenții PropertyLab:

Carol Szekeres

Tel: 0729 966 649

Email:carol.szekeres@propertylab.ro

Cristina Sipea

Tel: 0741 688 040

Email:cristina.sipea@propertylab.ro

CP2778719

Citește mai mult

  • Tip imobil
    Hală
  • Etaj
    Parter, Mezanin
  • Număr camere
    2
  • Suprafață utilă
    306 mp
  • Disponibilitate
    Imediat

Facilități

Apă
Canalizare
Curent
Iluminat stradal
Mijloace de transport în comun
Străzi asfaltate
Carol Szekeres - PROPERTY LAB
Carol Szekeres
Real Estate Consultant Arad

+40 729 966 649


Solicită chiar acum o vizionare
Telefon
Email
Sună acum Solicită vizionare
Necesare:

Site-ul nu poate funcționa corect fără aceste cookie-uri. Vezi cookie-urile

Statistică:

Strângem statistici anonime despre voi, vizitatorii unici, pentru a vă îmbunătăți experiența dumneavoastră. Vezi cookie-urile

Marketing:

Pentru a ne promova mai eficient serviciile noastre, folosim cookies pentru a vă identifica și a vă oferi proprietăți și servicii personalizate. Vezi cookie-urile

Acest site folosește cookies, află detalii. Alege ce tipuri de cookies dorești să permitem: