ID CP2115143

Clădire modernă pentru birouri 340 mp

ID CP2115143

5,100 € + 21% TVA

Spațiu de birouri de închiriat
Micalaca, Arad
340 mp
2015

Clădire modernă pentru birouri 340 mp

Iți dorești o nouă locație în care să iți desfășori activitatea?

PropertyLab iți propune o clădire individuală, modernă și avangardistă, localizată în zona Micălaca, Arad.

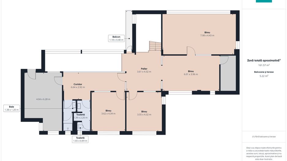
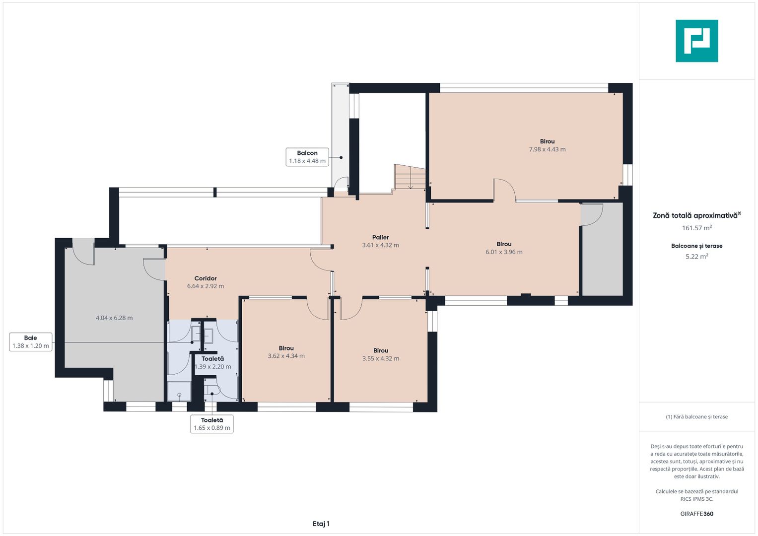
Construcția este dispusă pe parter și etaj, este dotată cu o curte proprie cu spații verzi, parcare pentru 10 mașini, și este împărțită astfel:

PARTER

- sală de așteptare cu recepție;

- sală de ședințe;

- 3 birouri;

- bucătărie;

- hol;

- 2 băi.

ETAJ

- hol;

- 5 birouri;

- 2 arhive/camere depozitare;

- 2 băi;

- terasă;

În spatele acestei clădiri s-a construit recent o hală cu o suprafață de aproximativ 400 mp, care poate fi și aceasta închiriată separat.

Daca ți-am stârnit interesul și dorești mai multe detalii despre această locație, nu ezita să mă contactezi!

Andrei Lăluciu - Consultant Imobiliar PropertyLab

Telefon 0753 934 085

Email andrei.laluciu@propertylab.ro

Cod Proprietate 2115143

Citește mai mult

  • Tip imobil
    Clădire birouri
  • Etaj
    1
  • Clasă birouri
    A
  • Număr camere
    9
  • Număr băi
    4
  • Suprafață construită
    380 mp
  • Număr terase
    1
  • Suprafață utilă
    340 mp
  • Disponibilitate
    Imediat
  • Suprafață totală birouri
    200 mp
  • Compartimentare spațiu
    Compartimentat
  • Parcări suprafață
    10
  • Parcări suprafață disponibile
    10
  • An construcție
    2015
  • Construcție nouă
    Da
  • De la dezvoltator
    Da
  • Număr etaje clădire
    1

Facilități

Acces pentru persoane cu dizabilități
Afișare logo pe clădire
CCTV
Centrală termică
Centru comercial în apropiere
Contorizare separată
Control electric individual pe zona de birou
Control individual AC pentru fiecare zonă de birou
Detectoare de fum/incendiu
Echipamente moderne / silențioase
Ferestre care se deschid
Gresie
Grupuri sanitare amenajate și utilate
Internet
Mochetă
Parcare biciclete
Parcare deschisă
Recepție
Salubritate
Sistem de alarmă
Sistem de ventilație
Sistem electric inteligent
Stație de autobuz în apropiere
Stație de tramvai în apropiere
Tavan fals
Telefon
Vedere spre oraș
Ventilație mecanică
Almira Boboc - PROPERTY LAB
Almira Boboc
Real Estate Consultant Arad

+40 745 069 393


Solicită chiar acum o vizionare
Telefon
Email
Sună acum Solicită vizionare
Necesare:

Site-ul nu poate funcționa corect fără aceste cookie-uri. Vezi cookie-urile

Statistică:

Strângem statistici anonime despre voi, vizitatorii unici, pentru a vă îmbunătăți experiența dumneavoastră. Vezi cookie-urile

Marketing:

Pentru a ne promova mai eficient serviciile noastre, folosim cookies pentru a vă identifica și a vă oferi proprietăți și servicii personalizate. Vezi cookie-urile

Acest site folosește cookies, află detalii. Alege ce tipuri de cookies dorești să permitem: