ID CP2046724

Imobil spațios la roșu pentru investiție - Vinga

ID CP2046724

80,000 € (negociabil)

Casă / Vilă cu 6 camere de vânzare
Vinga
385 mp
2000

Vânzare Imobil spațios la roșu – Ideal Locuință / Investiție / Afacere – Vinga, jud. Arad

Oportunitate rară! Vă propunem spre vânzare o proprietate generoasă și versatilă, situată într-o zonă liniștită, pe stradă asfaltată, în localitatea Vinga, cu acces rapid către Arad și facilități în proximitate.

Detalii proprietate:

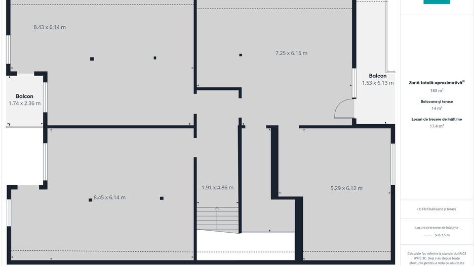
Suprafață teren: 832 mp

Amprentă la sol: 226 mp

Suprafață utilă totală: 385 mp

Regim de înălțime: Parter + Etaj + Pod

Podul este izolat cu vată minerală

Acoperiș: țiglă Tondach (Teran)

Acces și curte:

Proprietatea are 2 porți de acces

Intrare facilă cu camionul – perfect pentru activitate comercială, depozit sau logistică

Compartimentare și destinație:

Parterul (280 mp utili) este la stadiul de gri, cu șapă mecanizată turnată

Spațiu deschis, ideal pentru amenajare magazin, showroom, birouri sau atelier

Etajul oferă multiple posibilități de compartimentare:

Se poate transforma în 3 apartamente distincte, fiecare cu bucătărie, baie, cameră și balcon propriu (3 balcoane în total)

Spațiul este parțial compartimentat, lăsând libertatea noilor proprietari să configureze interiorul după nevoi

Utilități:

Racordată la curent electric

Toate utilitățile (apă, canalizare, gaz) sunt la limita proprietății, pregătite pentru racordare

Ideal pentru:

Locuință multifamilială

Investiție pentru închiriere

Spațiu comercial sau mixt (birouri / locuințe / depozitare)

Activități logistice sau cu acces auto de mare tonaj

Opțiune alternativă: Proprietarul este deschis și la varianta de închiriere!

Nu rata această oportunitate! Contactează-ne pentru mai multe informații sau pentru o vizionare!

Adelina Dragos - Consultant Imobiliar PropertyLab

Telefon : +40757015599

E-mail : adelina.dragos@propertylab.ro

Alexandra Valea - Consultant Imobiliar PropertyLab

Telefon : +40746756071

E-mail : alexandra.valea@propertylab.ro

CP2046724

Citește mai mult

  • Număr camere
    6
  • Dormitoare
    5
  • Număr bucătării
    1
  • Număr băi
    4
  • Geam la baie
    Da
  • Număr balcoane
    3
  • Număr locuri parcare
    4
  • Disponibilitate
    Imediat
  • Tip casă
    Vilă
  • Stare interior
    Necesită renovare
  • Anul finisării
    2001
  • Suprafață utilă
    385 mp
  • Suprafață construită la sol (Amprentă)
    226.0 mp
  • Suprafață teren
    832 mp
  • Acoperiș
    Țiglă
  • Stadiu construcție
    La roșu
  • An construcție
    2000
  • Construcție nouă
    Da
  • Tip construcție
    Cărămidă
  • Număr etaje clădire
    1

Facilități

Acoperiș
Curent
Curte
Geamuri termopan
Grădină proprie
Iluminat stradal
Izolație interioară
Mijloace de transport în comun
Parcare deschisă
Șapă
Străzi asfaltate
Ușă intrare metal
Ușă intrare PVC
Alexandra Valea - PROPERTY LAB
Alexandra Valea
Real Estate Consultant Arad

+40 746 756 071


Solicită chiar acum o vizionare
Telefon
Email
Sună acum Solicită vizionare
Necesare:

Site-ul nu poate funcționa corect fără aceste cookie-uri. Vezi cookie-urile

Statistică:

Strângem statistici anonime despre voi, vizitatorii unici, pentru a vă îmbunătăți experiența dumneavoastră. Vezi cookie-urile

Marketing:

Pentru a ne promova mai eficient serviciile noastre, folosim cookies pentru a vă identifica și a vă oferi proprietăți și servicii personalizate. Vezi cookie-urile

Acest site folosește cookies, află detalii. Alege ce tipuri de cookies dorești să permitem: