ID CP2755473

Casă cu panoramă spre dealurile Șiriei

ID CP2755473

120,000 €

Casă / Vilă cu 5 camere de vânzare
Siria
190 mp

Casă de vânzare în Siria, județul Arad – cu vedere superbă spre dealurile cu viță de vie

PropertyLab vă oferă spre achiziție o casă semifinisată, spațioasă și luminoasă situată în localitatea Șiria, județul Arad — o zonă deosebit de frumoasă, apreciată pentru aerul curat și priveliștile către dealurile cu viță de vie.

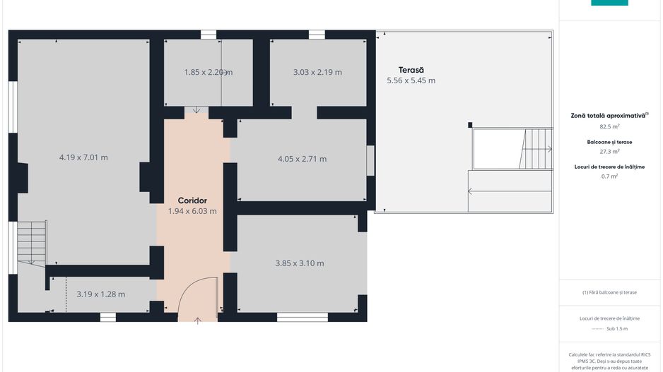
Detalii generale:

• Teren: 1.260 mp cu deschidere de 22 ml

• Suprafață construită: 230 mp

• Suprafață utilă: 190 mp

• Regim de înălțime: Parter + Pivniță + Mansardă

• Structură din BCA

• Compartimentare: la parter avem un living generos, o bucătărie cu loc de luat masa, cameră, spațiu tehnic, terasă

la mansardă avem 2 camere mari și loc pentru baie

Dotări și instalații:

• Utilități: apă, curent, gaz

• Instalație electrică finalizată la parter

• Cablu TV tras în camere

• Spații instalate pentru termostat și prize multiple în fiecare încăpere

• Senzor de alarmă în fiecare cameră

• Priză pentru climatizare amplasată la intrare

• Instalație pregătită pentru sistem de alarmă complet

• Infrastructură modernă, pregătită pentru amenajări ulterioare

Alte avantaje:

• Curte generoasă, perfectă pentru grădină, livadă sau spațiu de relaxare

• Vedere panoramică către dealurile viticole din Siria

• Acces facil la drumul principal și la facilitățile localității

• Zonă liniștită, ideală pentru locuință permanentă.

Proprietarul se angajează la ridicarea materialelor depozitate în casă și eliberarea spațiilor interioare.

Sunați acum și programați o vizionare!

Raluca Marinescu – Consultant imobiliar PropertyLab

0755 083 764

e-mail raluca.marinescu@propertylab.ro

CP2755473

Citește mai mult

  • Număr camere
    5
  • Număr bucătării
    1
  • Număr băi
    2
  • Geam la baie
    Da
  • Număr terase
    1
  • Disponibilitate
    Imediat
  • Tip casă
    Individual
  • Stare interior
    Semifinisat
  • Suprafață utilă
    190 mp
  • Suprafață teren
    1,260 mp
  • Deschidere
    22 m
  • Acoperiș
    Țiglă
  • Stadiu construcție
    Semifinisat
  • Tip construcție
    Cărămidă
  • Număr etaje clădire
    1
  • Are mansardă
    Da

Facilități

Apă
Contor electric
Contor gaz
Curent
Gaz
Iluminat stradal
Mijloace de transport în comun
Străzi asfaltate
Raluca Marinescu - PROPERTY LAB
Raluca Marinescu
Real Estate Consultant Arad

+40 755 083 764


Solicită chiar acum o vizionare
Telefon
Email
Sună acum Solicită vizionare
Necesare:

Site-ul nu poate funcționa corect fără aceste cookie-uri. Vezi cookie-urile

Statistică:

Strângem statistici anonime despre voi, vizitatorii unici, pentru a vă îmbunătăți experiența dumneavoastră. Vezi cookie-urile

Marketing:

Pentru a ne promova mai eficient serviciile noastre, folosim cookies pentru a vă identifica și a vă oferi proprietăți și servicii personalizate. Vezi cookie-urile

Acest site folosește cookies, află detalii. Alege ce tipuri de cookies dorești să permitem: