ID CP1689735

Duplex modern, mobilat si utilat in Dumbrăvița

Această proprietate nu mai este activă,
te invităm să vizualizezi proprietăți similare

ID CP1689735

269,000 €

Casă / Vilă cu 5 camere de vânzare
Dumbravita
140 mp
2021

Duplex modern, mobilat si utilat in Dumbrăvița

PropertyLab vă propune pentru vânzare duplex în stil modern situat în Dumbrăvița, complet utilat și mobilat.

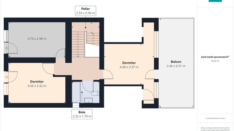
Terenul aferent proprietății este de 320mp, suprafața utilă a casei de 140mp și este compartimentată astfel:

Parter: hol, baie, bucătărie, spațiu tehnic, living +dinning, birou/dormitor, spațiu depozitare sub scară, terasă foarte spațioasă și acoperită

Etaj: hol, 3 dormitoare, 2 băi, dressing, balcoane la fiecare dormitor.

Confortul termic este asigurat iarna de centrala termică proprie și încălzirea prin pardoseală cu senzori ambientali pentru fiecare încăpere. Vara, confortul termic este dat de aparatele de aer condiționat.

Amenajarea interioară este realizată cu mobilier făcut la comandă, bucătărie echipată cu electrocasnice profesionale de ultimă generație (cuptor, plită, hotă, mașină de spălat vase, combină frigorifică), sistemul de iluminare este integral cu led.

Casa este echipată cu ferestre Salamander din profil cu 7 camere, cu geam tripan antiefracție, plase de țânțari tip rulou și jaluzele exterioare acționate electric. Există un sistem de monitorizare audio/video și cablare pentru sistem de alarmă.

Terasa exterioară foarte generoasă este acoperită, iar grădina este amenajată cu gazon și gard viu din brazi Leylandii, cu sistem automat de irigare, în fața casei sunt 3 locuri de parcare.

Sună-mă pentru detalii și vizionare!

Tur virtual:

https://tour.giraffe360.com/e9db4a1ec61f475c924002cc782eeef1/

Remus Beiușanu – Consultant imobiliar PropertyLab

Telefon: 0785 997 537

remus.beiusanu@propertylab.ro

Cod Proprietate 1689735

Citește mai mult

  • Număr camere
    5
  • Dormitoare
    4
  • Număr bucătării
    1
  • Număr băi
    3
  • Geam la baie
    Da
  • Număr balcoane
    2
  • Număr terase
    1
  • Număr locuri parcare
    3
  • Disponibilitate
    Imediat
  • Tip casă
    Duplex
  • Stare interior
    Ultrafinisat
  • Anul finisării
    2021
  • Suprafață utilă
    140 mp
  • Suprafață construită
    168 mp
  • Suprafață teren
    327 mp
  • Deschidere
    11 m
  • Acoperiș
    Terasă
  • Stadiu construcție
    Finalizată
  • An construcție
    2021
  • Construcție nouă
    Da
  • Tip construcție
    Cărămidă
  • Număr etaje clădire
    1
  • Are pod
    Da

Facilități

Acoperiș
Aer condiționat
Apă
Apometre
Aragaz
Bucătărie închisă
Bucătărie mobilată
Bucătărie utilată
Cabină de duș
Cadă
Canalizare
CATV
Centrală proprie
Contor electric
Contor gaz
Curent
Curte
Dressing
Faianță
Ferestre PVC
Frigider
Gaz
Geamuri termopan
Grădină proprie
Gresie
Hotă
Iluminat stradal
Încălzire prin pardoseală
Interfon
Internet
Irigații
Izolație exterioară
Mașină de spălat rufe
Mașină de spălat vase
Mijloace de transport în comun
Mobilat complet
Mobilat lux
Parcare deschisă
Parchet laminat
Rulouri / obloane electrice
Scară interioară
Șemineu
Străzi asfaltate
Telefon
TV
Ușă intrare PVC
Uși interior MDF
Vopsea lavabilă
Necesare:

Site-ul nu poate funcționa corect fără aceste cookie-uri. Vezi cookie-urile

Statistică:

Strângem statistici anonime despre voi, vizitatorii unici, pentru a vă îmbunătăți experiența dumneavoastră. Vezi cookie-urile

Marketing:

Pentru a ne promova mai eficient serviciile noastre, folosim cookies pentru a vă identifica și a vă oferi proprietăți și servicii personalizate. Vezi cookie-urile

Acest site folosește cookies, află detalii. Alege ce tipuri de cookies dorești să permitem: