ID CP1599828

Clădire cu două apartamente zonă centrală

Această proprietate nu mai este activă,
te invităm să vizualizezi proprietăți similare

ID CP1599828

250,900 € (negociabil)

Casă / Vilă cu 5 camere de vânzare
Central, Arad
185 mp
1900

Clădire cu două apartamente zonă centrală

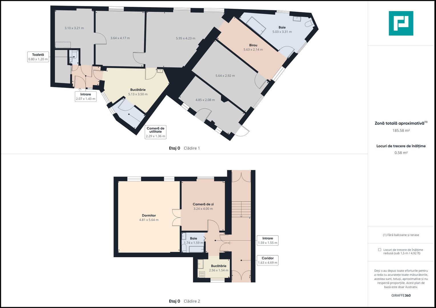
Vă propunem spre achiziție această clădire cu două apartamente zonă centrală. A fost reabilitată în exterior în anul 2019. Este formată din 2 apartamente situate în zona centrală a orașului, în apropiere de bine-cunoscuta clădire Casa cu Lacăt.

Apartamentele au intrarea separată și sunt compartimentate după cum urmează:

primul apartament este compus din hol intrare, 2 camere spațioase, baie cu vană și o chicinetă.

Cel de-al doilea apartament este format din

-hol intrare,

-bucătărie închisă cu cămară,

-living,

-3 dormitoare,

-o baie mare cu vană,

-un wc de serviciu

-un dressing.

Clădirea are 2 pivnițe și o cămară cu intrare din curte. Mică dar cochetă, curtea interioară oferă intimitate, și este un loc ideal de relaxare cu loc amenajat pentru barbeque.

Ambele apartamente sunt generoase și luminoase.

Imobilul pe care vi-l prezentăm este situat la intrarea pe strada Kuncz Aladar colț cu bulevardul Decebal. Are vedere pe o parte la un părculeț cu verdeață iar în imediata apropiere sunt magazine diverse. Se găsesc un supermarket, farmacie, schimb valutar, transport în comun, stație taxi, cafenele, restaurante, scoli etc.

Toate aceste atuuri face proprietatea o investiție extrem de rentabilă și pretabilă pentru activități dintre cele mai diverse, dar și ca locuință personală.

Iți dorești această proprietate?

Vrei să faci o investiție rentabilă?

Nu ezita să mă contactezi!

Radu Mitran

Consultant imobiliar Propertylab

Telefon 0751621035

Email: radu.mitran@propertylab.ro

Cod proprietate 1599828

Citește mai mult

  • Număr camere
    5
  • Număr bucătării
    2
  • Număr băi
    3
  • Geam la baie
    Da
  • Număr terase
    1
  • Număr locuri parcare
    2
  • Disponibilitate
    Imediat
  • Tip casă
    Individual
  • Stare interior
    Bună
  • Anul finisării
    2019
  • Suprafață utilă
    185 mp
  • Suprafață construită
    324 mp
  • Suprafață construită la sol (Amprentă)
    185 mp
  • Suprafață teren
    478 mp
  • Suprafață curte
    25 mp
  • Deschidere
    14 m
  • Acoperiș
    Țiglă
  • Stadiu construcție
    Finisat
  • An construcție
    1900
  • Tip construcție
    Cărămidă
  • Imobil consolidat
    Da
  • Număr etaje clădire
    1
  • Număr subsoluri
    2
  • Are demisol
    Da
  • Are pod
    Da

Facilități

Acoperiș
Apă
Aragaz
Bucătărie închisă
Bucătărie mobilată
Bucătărie parțial utilată
Cadă
Calorifere
Canalizare
CATV
Centrală proprie
Chicinetă
Contor electric
Contor gaz
Curent
Curte
Dressing
Faianță
Ferestre care se deschid
Ferestre PVC
Frigider
Gaz
Geamuri termopan
Gresie
Hotă
Iluminat stradal
Internet
Mijloace de transport în comun
Mobilat parțial
Parchet laminat
Pivniță
Străzi asfaltate
Ușă intrare lemn
Uși interior lemn
Vedere spre oraș
Vopsea lavabilă
WC Serviciu
Zonă pentru barbeque
Necesare:

Site-ul nu poate funcționa corect fără aceste cookie-uri. Vezi cookie-urile

Statistică:

Strângem statistici anonime despre voi, vizitatorii unici, pentru a vă îmbunătăți experiența dumneavoastră. Vezi cookie-urile

Marketing:

Pentru a ne promova mai eficient serviciile noastre, folosim cookies pentru a vă identifica și a vă oferi proprietăți și servicii personalizate. Vezi cookie-urile

Acest site folosește cookies, află detalii. Alege ce tipuri de cookies dorești să permitem: