ID CP2530629

Duplex Modern la limita dintre Moșnița Nouă și Calea Urseni- Construcție 2024

ID CP2530629

145,000 € TVA inclus

Casă / Vilă cu 4 camere de vânzare
Mosnita Noua
95.1 mp
2024

Visezi la un cămin modern și confortabil? Avem soluția perfectă pentru tine!

Te invităm să descoperi un duplex deosebit, situat la limita dintre Moșnița Nouă și Calea Urseni, în mijlocul unei zone în plină dezvoltare, aproape de centura orașului. Construit în 2024, acest duplex te întâmpină cu finisaje moderne și o atmosferă primitoare, ideală pentru o familie care își dorește un spațiu generos și funcțional.

Despre duplex:

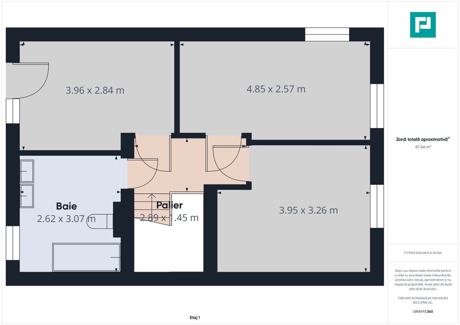
Suprafața utilă de 95 mp este perfect compartimentată pentru a oferi confortul de care ai nevoie. La parter, vei găsi o baie elegantă dotată cu duș, o bucătărie open space care se leagă armonios de livingul luminos, unde ai acces direct pe o terasă spațioasă – locul perfect pentru a savura diminețile cu cafeaua în mână sau serile alături de cei dragi.

La etaj, duplexul dispune de 3 dormitoare confortabile, plus o baie cu cadă, ideală pentru momentele de relaxare. Iar pentru a adăuga un plus de confort, pereții din băi sunt încălziți, iar tavanele extensibile din întreaga locuință oferă o senzație de amplitudine și eleganță.

Curtea și dotările:

Curtea este amenajată cu gust, oferind un loc perfect de joacă pentru copii sau un spațiu de relaxare pentru întreaga familie. În plus, duplexul este dotat cu un sistem de alarmă și video, asigurându-ți liniștea și siguranța.

Despre zonă:

Localizat într-o zonă în plină expansiune, te bucuri de acces facil la toate facilitățile necesare: magazine, școli, grădinițe și transport în comun.

Nu rata ocazia de a deveni proprietar al acestui duplex modern! Contactează-ne pentru mai multe detalii sau pentru a stabili o vizionare. Acesta ar putea fi noul tău cămin!

Agent imobiliar: Natalia Draganel

Telefon: 0722 313 450

natalia.draganel@propertylab.ro

Cod Proprietate: 2530629

Citește mai mult

  • Număr camere
    4
  • Dormitoare
    3
  • Număr bucătării
    1
  • Număr băi
    2
  • Geam la baie
    Da
  • Număr balcoane
    1
  • Număr terase
    1
  • Disponibilitate
    Imediat
  • Tip casă
    Duplex
  • Stare interior
    Finisat modern
  • Anul finisării
    2024
  • Suprafață utilă
    95.1 mp
  • Suprafață construită
    114.12 mp
  • Suprafață teren
    216 mp
  • Suprafață terasă
    20 mp
  • Acoperiș
    Terasă
  • Stadiu construcție
    Finisat
  • An construcție
    2024
  • Construcție nouă
    Da
  • Tip construcție
    Cărămidă
  • Număr etaje clădire
    1

Facilități

Apă
Apometre
Bucătărie deschisă
Cabină de duș
Cadă
CATV
Centrală proprie
Contor electric
Contor gaz
Curent
Curent trifazic (380V)
Curte
Ferestre PVC
Fosă septică
Gaz
Geamuri tripan
Grădină proprie
Iluminat stradal
Încălzire prin pardoseală
Internet
Izolație exterioară
Mijloace de transport în comun
Nemobilat
Parcare deschisă
Parchet
Sistem de alarmă
Străzi asfaltate
Supraveghere video
Telecomandă poartă acces auto
Ușă intrare metal
Uși interior MDF
Vopsea lavabilă
Wireless
Natalia Drăgănel - PROPERTY LAB
Natalia Drăgănel
Branch Manager Timișoara

0722313450


Solicită chiar acum o vizionare
Telefon
Email
Sună acum Solicită vizionare
Necesare:

Site-ul nu poate funcționa corect fără aceste cookie-uri. Vezi cookie-urile

Statistică:

Strângem statistici anonime despre voi, vizitatorii unici, pentru a vă îmbunătăți experiența dumneavoastră. Vezi cookie-urile

Marketing:

Pentru a ne promova mai eficient serviciile noastre, folosim cookies pentru a vă identifica și a vă oferi proprietăți și servicii personalizate. Vezi cookie-urile

Acest site folosește cookies, află detalii. Alege ce tipuri de cookies dorești să permitem: