ID CP3014119

Casă la curte, 65 mp utili, 2 camere, curte mare

ID CP3014119

108,500 € (negociabil)

Casă / Vilă cu 4 camere de vânzare
Garii, Oradea
65 mp
1980

# Casă la curte, 65 mp utili, 2 camere, curte mare comună – Str. Constanței, Oradea

Se oferă spre vânzare o locuință situată pe strada Constanței din Oradea, amplasată într-o curte mare comună cu un singur locatar. Proprietatea reprezintă o opțiune potrivită pentru cei care își doresc liniște, spațiu exterior generos și avantajele unei case, fără aglomerația specifică blocurilor.

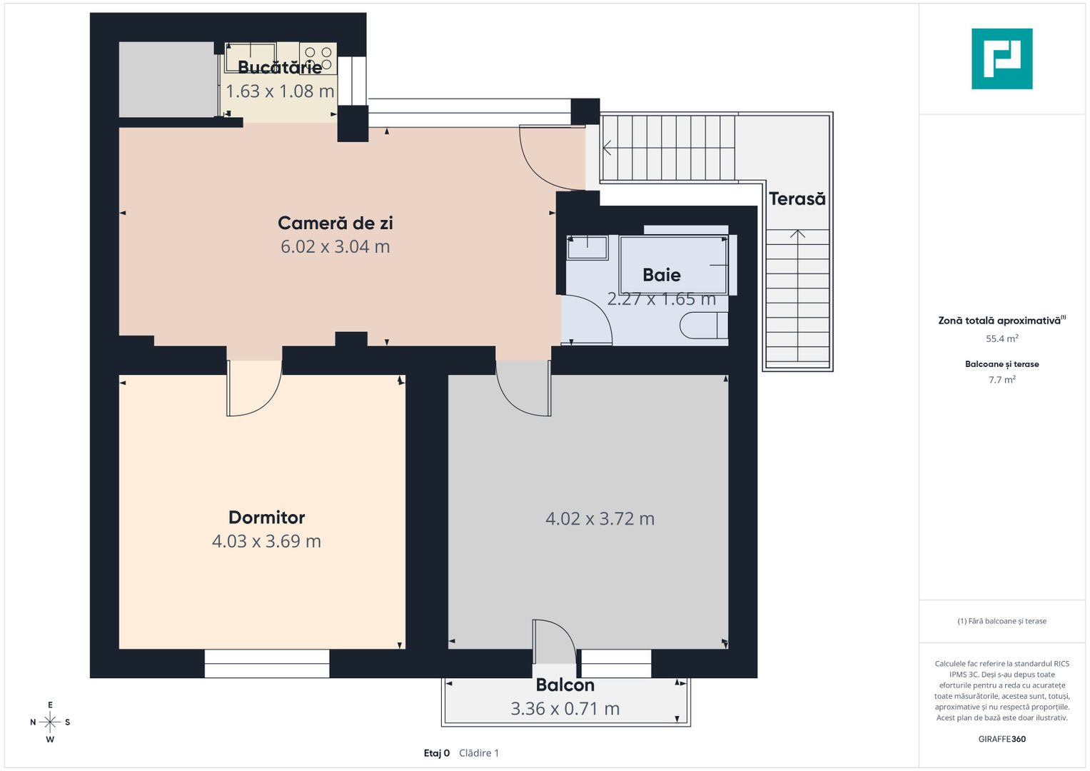
## Suprafață și compartimentare

Suprafață utilă: **65 mp**, la care se adaugă balconul și accesul la terasă.

Compartimentarea este eficientă:

* Living spațios cu bucătărie open-space

* Dormitor matrimonial mobilat la comandă

* A doua cameră liberă (birou / cameră copil / dressing)

* Baie

* Balcon

Proprietatea beneficiază de spații suplimentare importante:

* **Curte mare comună cu un singur vecin**

* **Dependință separată în curte**

* **Beci propriu pentru depozitare**

## Starea proprietății

Locuința este renovată și bine întreținută, fiind pregătită pentru mutare imediată. Se predă parțial mobilată:

* Bucătărie mobilată și utilată

* Dormitor cu mobilier realizat pe comandă

* A doua cameră nemobilată, pregătită pentru amenajare după preferințe

## Avantaje

* Grad ridicat de liniște și intimitate

* Curte generoasă, rar întâlnită la proprietăți similare

* Spații multiple de depozitare (dependință + beci)

* Potrivită pentru locuire sau investiție

Pentru detalii suplimentare și programarea unei vizionări, vă rugăm să ne contactați.

Roxana Hanes - Consultant Imobiliar Property Lab

Telefon - 0774588104

Email - roxana.hanes@propertylab,ro

Cod proprietate CP3014119

Citește mai mult

  • Număr camere
    4
  • Dormitoare
    2
  • Număr bucătării
    1
  • Număr băi
    1
  • Număr balcoane
    1
  • Număr terase
    1
  • Disponibilitate
    Imediat
  • Tip casă
    Individual
  • Stare interior
    Finisat clasic
  • Anul finisării
    2010
  • Suprafață utilă
    65 mp
  • Suprafață teren
    230 mp
  • An construcție
    1980

Facilități

Apă
Aragaz
Cadă
Canalizare
CATV
Curent
Gaz
Iluminat stradal
Internet
Mijloace de transport în comun
Străzi asfaltate
Telefon
Roxana Hanes - PROPERTY LAB
Roxana Hanes
Real Estate Consultant Oradea

0774588104


Solicită chiar acum o vizionare
Telefon
Email
Sună acum Solicită vizionare
Necesare:

Site-ul nu poate funcționa corect fără aceste cookie-uri. Vezi cookie-urile

Statistică:

Strângem statistici anonime despre voi, vizitatorii unici, pentru a vă îmbunătăți experiența dumneavoastră. Vezi cookie-urile

Marketing:

Pentru a ne promova mai eficient serviciile noastre, folosim cookies pentru a vă identifica și a vă oferi proprietăți și servicii personalizate. Vezi cookie-urile

Acest site folosește cookies, află detalii. Alege ce tipuri de cookies dorești să permitem: